2020-21_QD1/ E6_Caso de Estudio 6/ MIND THE GAP_Recuperación del lugar_Flisvos, Athens_Nella Golanda


2020-21_QD1/ E6_ 
Caso de Estudio 6/ MIND THE GAP_Recuperación del lugar_Plaza Central de Flisvos, en Palaio Faliro, Atenas, obra de Nella  Golanda & Aspassia Kouzouri.

El profesor P. Ursprung nos dice que algunos de los edificios más icónicos de las últimas décadas han perdido parte de su atractivo popular, ya que el ámbito de lo construido representa realidades políticas y comerciales ajenas a buena parte de la sociedad.  No obstante, en la práctica de arquitectos como Peter Zumthor o  Alvaro Siza, todavía persiste la convicción de que la arquitectura y el arte deben ser capaces de producir relaciones entre el hecho construido y el usuario, que no existan únicamente   mediante la percepción visual.

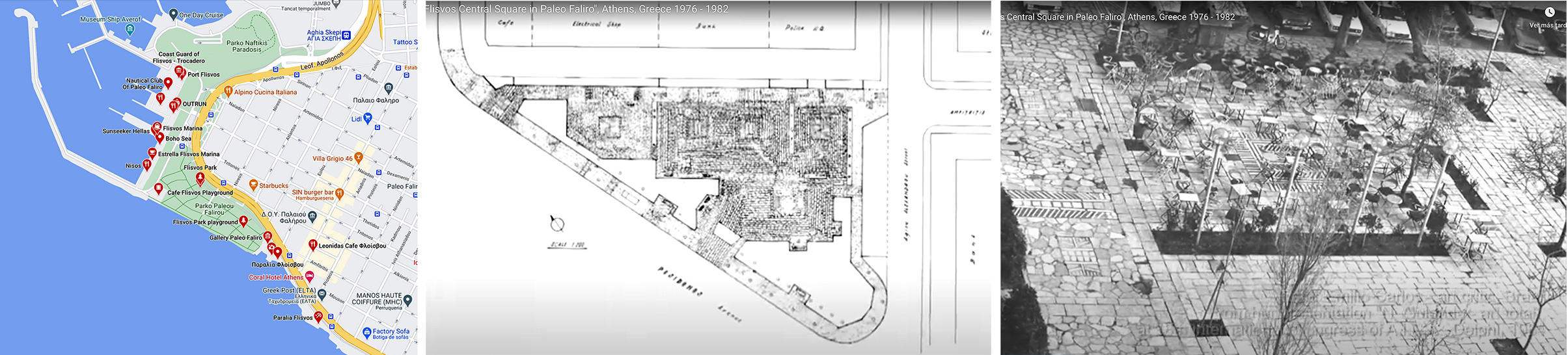
Nos dice P. Ursprung: En la primavera de 2013 estuve de viaje en Atenas con mis alumnos. Nuestros anfitriones nos llevaron a la costa y nos enseñaron cómo, en la época del boom de la construcción durante la posguerra, la expansión desregulada desconecto la ciudad de la playa. Nos dirigimos al puerto deportivo con la intención de hacer una parada en Palaio Faliro para ver el muelle escultórico de Flisvos, de la artista griega Nella Gollanda y Aspassia Kouzouri. Nuestros anfitriones habían escogido este proyecto, completado en 1986, como un ejemplo raro y exitoso de como podía hacerse accesible la playa.

Recuerdo que íbamos caminando a lo largo de la costa, en parte prestando atención a nuestros guías y en parte absortos por las hermosas vistas del Mediterráneo. Nuestro ritmo se ralentizo súbitamente e hicimos una parada. Los estudiantes empezaron a formar pequeños grupos y a charlar entre ellos: algunos se sentaron, otros sacaban fotos e incluso hubo uno que se puso a hacer el árbol. Yo disfrutaba de la calidez del aire, del olor fresco y salado del mar, del azul intense del cielo. Me llevó un rato darme cuenta de lo que había pasado. Habíamos llegado a nuestro destino, el muelle escultórico de Flisvos, pero nuestros anfitriones, a propósito, no nos lo habían comunicado. Aun sin explicación ni introducción alguna sentimos que habíamos llegado a un lugar muy especifico. No había ninguna necesidad de prisas, ninguna urgencia por seguir adelante. Simplemente estábamos presentes.

Comencé a examinar el lugar con más cuidado. Se trataba de una superficie inclinada, construida a base de hormigón revestido con unas losas de mármol erráticamente cortadas y de diferentes colores, que caía ligeramente hacia el mar. No había barandilla, pero me sentía seguro porque la superficie rugosa de mármol proporcionaba un buen asidero. Pisaba en terreno solido, aunque mas cerca del mar que en cualquier otra parte del paseo. Parecía como si uno pudiera simplemente echar una carrera y saltar al agua, o incluso echar a volar hacia el horizonte. E una parte se había tallado un nicho que formaba unos bancos revestidos de piedra y madera. En otro lado, un grupo de bancos parecían surgir de la plataforma maciza. Estos bancos estaban dispuestos de modo que la gente pudiera sentarse cerca y charlar, a pesar del ruido del viento y del mar. Unos pocos escalones conducían a una playita de arena protegida y enmarcada por el muelle.


Fuimos conscientes de inmediato de la calidad y de la belleza de este lugar que contrastaba fuertemente con lo azaroso de las numerosas construcciones de infraestructuras que habíamos visto dispersas por toda la costa. Sin embargo, también estábamos desconcertados, y empezamos a hablar sobre lo que teníamos ante nuestros ojos. ¿era esto arquitectura?, ¿una escultura?, ¿una pieza de infraestructura?, ¿una escenografía? ¿Era un escenario para un teatro, un mirador, un malecón, un pedestal, una fortificación, un salón al aire libre? Era imposible definir el tipo de estructura, e incluso nos costó describir su tamaño. Sin embargo, sentimos que aquella construcción se relacionaba de una manera muy específica con nuestros cuerpos, que producía un estado de atención intensificada hacia el aquí y e ahora, y eso agudizaba nuestra percepción de los alrededores.

Espacio escénico

Nunca antes había estado en ese lugar, y no sabía nada de Nella Golanda hasta que llegué a Grecia. Sin embargo, sentí una especie de déjà vu. ¿En qué otro lugar había experimentado una sensación comparable de mi propia presencia dentro del entorno construido? La relación entre lo artificial y el paisaje, entre la escala pequeña y la grande, entre las losas de piedra cuidadosamente dispuestas, casi ornamentales, y la estructura general me recordaba a otros lugares que ya había visitado. A medida que daba vueltas por el muelle, sentía la superficie del mármol bajo mis zapatos y con las puntas de los dedos notaba el contraste entre el hormigón rugoso y la madera pulida de los bancos, y recordé un viaje que hice a las piletas publicas de Leça de Palmeira, construidas por Alvaro Siza cerca de Oporto a principios de la década de 1960. Unos colegas me llevaron allí hace dos años en un día demasiado frio como para bañarse. En las piletas de Siza, con sus plataformas de hormigón y escaleras que daban la impresión de haber sido añadidas directamente, o bien talladas en la roca, me sentí cercano al océano Atlántico y, a su vez, protegido por él. La costa rocosa y las intervenciones de hormigón servían de marco mutuo, por decirlo de algún modo. Me había fascinado otra conjunción similar cuando visité el estadio municipal de Braga (2003), de Eduardo Souto de Moura, donde la crudeza de la cantera existente crea un contraste con la elegante estructura de hormigón de las gradas. La oscilación entre lo visual y lo táctil, y el recorrido a seguir que ofrece la arquitectura al visitante, así como el sentido de lo teatral son cruciales en ambos arquitectos.

La fusión entre lo pictórico, lo escultórico, lo arquitectónico y lo escénico que experimenté en Palaio Faliro también me recordó a Gibellina Vecchia, donde el artista italiano Alberto Burri forjó un paisaje de hormigón sobre las ruinas de una aldea siciliana que había sido destruida por un terremoto. Conocido en la década de 1950 y 1960 por sus cuadros de gran formato con superficies tratadas toscamente, entre ellas la arcilla y la tela, Burri había aumentado la escala de una pintura a la de todo un asentamiento. Su obra Grande Cretto (1981) permitía a los visitantes hundirse literalmente en la superficie de una pintura de grandes dimensiones y desaparecer por sus grietas, que servían tanto de caminos reales como de trazas del proceso artístico. Y, finalmente, los matices de los materiales, las texturas y los colores bajo mis pies en Palaio Faliro también me recordaron al camino de piedra y hormigón que atraviesa las salas de la reforma del museo di Castelvecchio en Verona, de Carlo Scarpa, construida entre finales de la década de 1950 y mediados de la de 1970. En este museo, Scarpa fue mas allá que cualquier otro arquitecto de aquella época en su intento por orquestar los movimientos de los usuarios del edificio. Me sentí libre de deambular por él, guiado sin peligro por la narrativa espacial que utiliza la luz y la sombra, los espacios angostos y abiertos y una variedad de materiales para envolver al visitante del museo.

Durante nuestra breve estancia en el muelle escultórico Flisvos, experimentamos una combinación similar de orientación y libertad de movimentos. En cierto sentido, nos sentimos como bailarines o actores sobre un escenario, actuando libremente sin una trama o una coreografía fija; simplemente nos dejábamos llevar por el entorno. Quizás éramos particularmente susceptibles a este aspecto escénico porque el día anterior habíamos visitado el teatro de Dionisio Eleuteros.

LABORES A REALIZAR:

– Describir los ámbitos de este lugar. Nótese que los diversos grupos de mobiliario urbano-esculturas- fuentes, o como podamos llamarlos, delimitan areas, abriendo y cerrando dominios.

– La significación histórica del área incluye una serie de perspectivas, donde se proyecta todavía la ciudad, al tiempo que se precisa contener a la ciudadanía: los espacios libres están llenos de sugerencias, no en vano el puerto de Palaio Faliro es anterior al del Pireo.

-la definición de los volúmenes mediante un rasgo decidido no está reñida con la interacción de sonidos -el murmullo de la hojarasca o las ramas, el fluir del agua, el viento, el gentío, el mar no tan distante… todo aporta una diferenciación de zonas, casi musical.

– Podéis seguir en el video de you-tube cómo es este lugar. Aún queda información que iremos aportando, en paralelo con los comentarios de clase. Antes de empezar, es importante comprender el ámbito, y abrid vuestra percepción. Después, disfrutad.

BIBLIOGRAFIA Y ENLACES:

Ursprung, P.: “Presence: The Light Touch of Architecture”( Presencia: el leve toque de la arquitectura, en Sensing Space. Architecture reimagined, catálogo de la exposición que tuvo lugar en la Royal Academy of Arts, Londres, 2014, traducido al español como parte de los textos de Philip Ursprung, en Brechas y conexiones. Ensayos sobre arquitectura, arte y ecconomía, Puente Editores, Barcelona, 2016).

https://youtu.be/l3mQz7MeYXw

 

2020_21_QD1/ E5_Caso de Estudio 5/ MIND THE GAP_Reconstrucción elocuente_La Tallera Siqueiros_Cuernavaca_Frida Escobedo, 2012

 

2020_21_QD1/ E5_Caso de Estudio 5/ MIND THE GAP_ Reconstrucción elocuente_La Tallera Siqueiros_Frida Escobedo, 2012.

Introducción

Frida Escobedo (1979, Ciudad de México) fundó su práctica en 2006, tras  codirigir 4 años la firma de arquitectura Perro Rojo, centrando su obra en  reactivar espacios urbanos, antes residuales u olvidados. Galardonada con la Beca Young Creators por el National Fund for Arts and Culture (FONCA) en 2004  y seleccionada en 2008 para el Proyecto Ordos 100 en Mongolia Interior, China.  Ganadora del Young Architects Forum, organizado por la Architectural League of New York en 2009, y seleccionada en 2013 como una de las tres finalistes para el programa de Arquitectura en la Iniciativa de Arte Rolex Mentor and Protégé Arts, así como nominada para el Premio Arc Vision para las Mujeres y el Premio Iakov Chernikhov. Finalista en 2014 para los diseños del Año en el Design Museum de Londres y nominada para el Mies Crown Hall Americas Prize del Illinois Institute of Technology.

Ganó en 2014 el Premio de la Bienal Iberoamericana de Arquitectura y Urbanismo (IX BIAU) en Rrosario, Argentina. Y en 2017 recibió el premio Emerging Voices Award otorgado por la Architectural League of New York.

2010_Pabellón Eco_Foto Rafael Gamo.
2013_Trienal de Lisboa_Escenario civico.
2018_Dibujo conceptual y Pabellón Serpentine.

Puede seguirse un desarrollo desde el Pabellón Eco (2010) todavía con resonancias de Barragán, donde la correcta disposición de los materiales deja ver un afán de precisión. La reactivación de espacios urbanos, arriba aludida se percibe con claridad en la instalación de la Trienal de Lisboa (2013) con un arquitectura efímera que pulsa las posibilidades del ámbito publico. O, en fin, el Pabellón Serpentine (2018) donde el tránsito desde las representaciones conceptuales a una tectónica bien precisa es evidente.

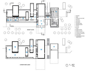
LA TALLERA, Cuernavaca, Morelos, México, 2012. Arquitecta F. Escobedo

El espacio construido en 1965, y convertido más tarde en casa-estudio del muralista David Alfaro Siqueiros  al final de su vida es el centro de esta rehabilitación y refrigeración, operando con el sencillo gesto que concilia el patio del museo con la lectura del lugar, la plaza adyacente; una apertura conseguida con aparente sencillez al girar la posición original de los murales.

Axonometría del proyecto, junto a secuencia de plantas, donde puede contraponerse con claridad la propuesta realizada junto al espacio público, y la transformación de la casa con patio original, abierto mediante el giro de los murales preexistentes. La lectura de la llegada y de la visión retrospectiva, al girar la mirada al trayecto de llegada, hacen coexistir el recorrido de acceso y la reconsideración de la experiencia del movimiento. Fuente: archdaily.com.
Murales girados acogen a la entrada como dos brazos abiertos, estableciendo una continuidad con el espacio publico. Fuente: archdaily.com.
Los murales situados en el exterior quedan soportados por pequeñas construcciones que dan continuidad constructiva y contenido de programa al edificio existente. Fuente: archdaily.com.

La Tallera era un verdadero taller de muralismo, transformado para  ensayar nuevas técnicas de pinturas, materiales, trazas geométricas o perspectivas. Esa era la definición de Siqueiros para el taller, intervenido como museo, taller y residencia artística, destinado a la producción y crítica de arte. Hay un desplazamiento del patio, que pasa de ser un ámbito privado a convertirse en dominio publico, cedido a la convivencia compartida, a la vez que se apropia de la plaza frente a él. Con esa operación los murales pensados en un inicio para el exterior pueden funcionar ahora como vínculo visual y programático con la plaza, al contener las áreas públicas del museo –cafetería, librería-tienda —y como separación de programa, al diferenciar  residencia artística y museo-taller.

El sencillo giro de los murales permite articular  los elementos del acceso, dotando de sentido  arquitectónico a la fachada y cambiando la relación previa entre galería y visitante. Tanto el exterior, como el espacio de galería –museográfico y artístico— se desdoblan,  generando nuevas relaciones y vínculos espaciales.

La antigua construcción recibe una apariencia de novedad al ser rodeada por una celosía a través de la cual se filtran las aberturas y aportando imágenes cambiantes, desde la opacidad a la transparencia. Fuente: archdaily.com.
Las luces filtradas for la celosía perimetral y los pasillos llenan de claridad los espacios, confiriendo una mayor amplitud.

La celosía que rodea el nuevo museo-taller aporta una sutileza en el tratamiento de luces y ventilaciones, concediendo privacidad sin necesidad de una separación abrupta. Los matices cambian con las estaciones, también con la hora del día, de manera que se consigue una riqueza espacial de la que se carecería de otro modo. El sistema constructivo se percibe bien en las secciones, donde la luminosidad necesaria de los espacios de taller, el desplazamiento de los murales hacia el acceso principal, incluso una sección detallada del sistema constructivo se nos presenta de una manera clara.

Diversas secciones dispuestas todas la misma escala. Permiten apreciar cómo se filtra la luz y se generan corrientes de aire para mantener el edificio bien temperado. Fuente: archdaily.com.
La estructura permite filtrar luz ampliamente.
Espacios diáfanos de los Talleres. Su flexibilidad permite actividades diversas. Fuente: archdaily.com.

La distribución de espacios y juegos de planos –tanto murales como muros– se devela al cruzar una celosía perimetral que delimita el contexto urbano, una misma pieza escultórica horizontal que resguarda y muestra la obra de Siqueiros.

EJERCICIO A REALIZAR:

-Incorporar en la presentación que cada estudiant@ realice un plano de situación donde se perciba el diálogo entre espacio público y acceso al centro cultural

– Diferenciación de plantas y secciones que muestren el programa interior.

-Elección de recorridos/ conexiones entre espacios interiores.

– Salas interiores que cadaestudiant@crea oportuno significar.

-Dedicaremos dos semanas, hasta el 4 de diciembre 2020.

 

Bibliografía:

 La Tallera / Frida Escobedo Ver Proyecto completo en  https://archdai.ly/2HFldcp

Imágenes © Rafael Gamo. … Plataforma Arquitectura.

https://www.plataformaarquitectura.cl/cl/02-227408/la-tallera-frida-escobedo

Accessed 9th November 2020.

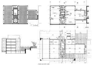
2020-21_QD1/ E4_ Caso de Estudio 4/ MIND THE GAP_ Persuasión en arquitectura_Facultad de Economía de la Universidad Luigi Bocconi_Milán_Grafton Architects

2020-21_ QD1/ E4_Caso de Estudio 4/ MIND THE GAP_ Retórica del Concurso_Facultad de Economía de la Universidad Luigi Bocconi, Milán_ Grafton Architects

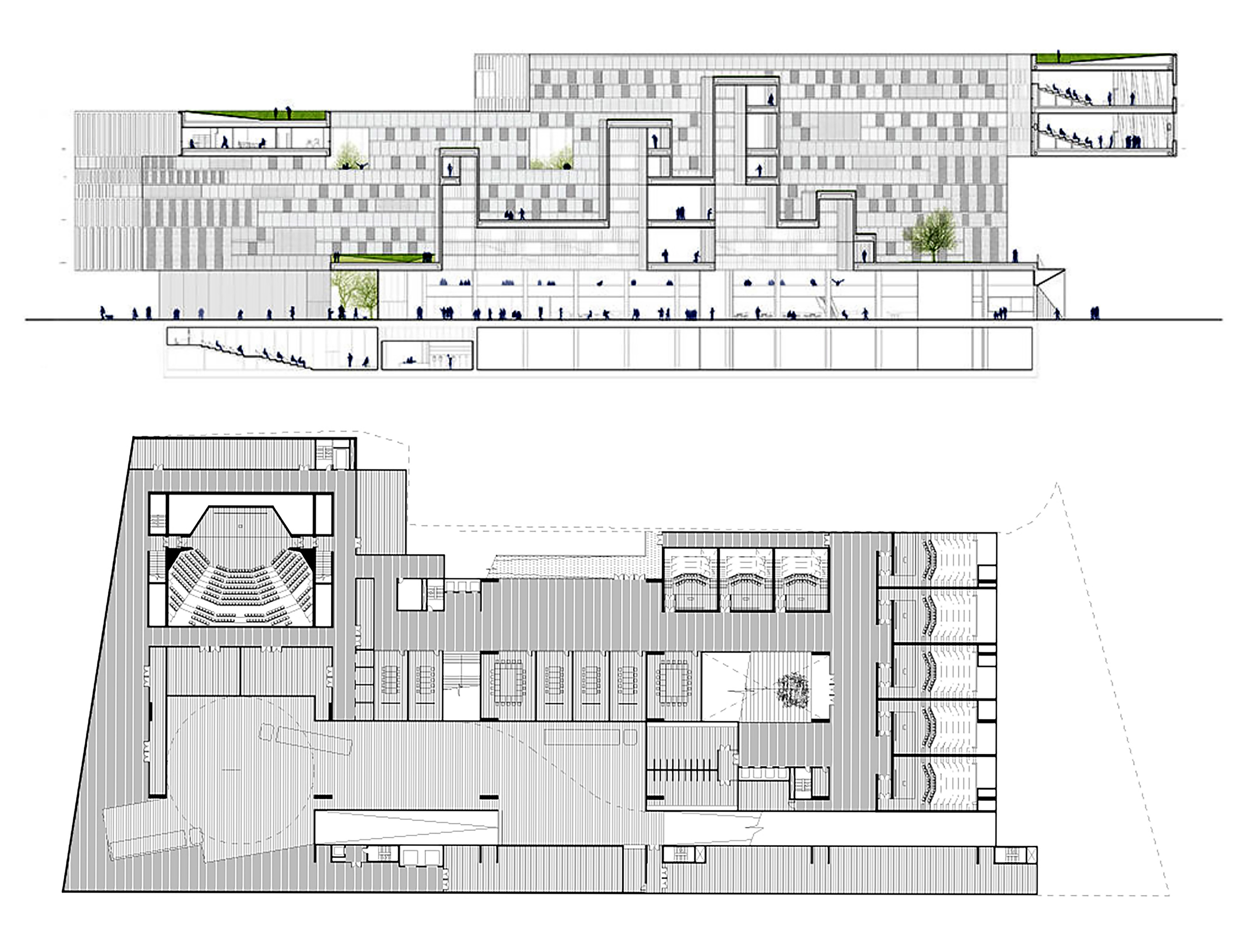
La Universidad Luigi Bocconi convocó varios concursos restringidos para construir los centros y la ampliación de su Campus en los últimos tres lustros. La coincidencia en ellos de varios premios Pritzker ha permitido comprobar la pertinencia de sus diseños, pudiendo aislar cuales son las estrategias de proyecto en la actualidad.

Area de los concursos para la Università L. Bocconi, entre Viale Bligny y Via G. Röntgen, complementada por otra área junto a Via R. Sarfatti, próxima al Parque A. Ravizza. En gris la intervención de Grafton Archs.

Hablando sobre los Premios WAF,  Paul Finch,  director del programa y editor de Architectural Review, manifestó: “Nuestras felicitaciones para Grafton Architects. El super-jurado ha tenido un debate interesante, que pudiera haber seguido durante varios días. El edificio ganador tiene una fuerte relación con el paisaje de Milan y posee la capacidad de construir una diferencia profunda en las vidas de sus usuarios.  Grafton Architects han abierto el pasado de la ciudad con una actitud del siglo XXI.” (cita de De Zeen)

El Jurado Cecil Balmond, de Arup, admiró “el diseño tridimensional que tomó la arquitectura, la construcción y el diseño, usándolo para crear una trama urbana. Su sencilla solución estructural suspende los despachos sobre  un área de concurrencia subterránea.”

Las directors de  Grafton Architects, Yvonne Farrell y Shelley McNamara comentaron: “Estamos encantadas de haber ganado  este galardón para  el mayor proyecto que hayamos realizado. Intentamos hacer de la Universidad una ciudad en miniatura donde los ámbitos públicos conectan con el resto de la ciudad y el campus proporciona una ventana a Milan. Habiendo estado en la ciudad durante seis años   hemos llegado a apreciar este proyecto, que ha cambiado nuestras vidas. Un cliente fantástico, el lugar y la ambición, todos contribuyen a la buena arquitectura, y hemos tenido a los tres“. (cita de De Zeen)

Al mismo tiempo, varias investigadoras solventes se han ocupado del fenómeno de los concursos, relacionándolo con el ámbito de la Retórica, (disciplina ocupada de la persuasión en los procesos comunicativos), que puede aplicarse al representar una obra de arquitectura, especialmente cuando un jurado emite un juicio decisorio sobre qué proyecto es preferible para un programa y ocasión únicos. No se enuncia sólo una apreciación estética, se juzga la preferencia de uno u otro proyecto para cumplir las solicitaciones de un programa y su viabilidad constructiva. Aquí entra en juego otro factor, ya que el jurado seleccionó como preferibles las propuestas de equipos liderados por arquitectas.

Primeros esbozos de Grafton para la U. L. Bocconi. La ausencia de una referencia es percibida junto a una situación pública, urbana, del campus.

La propuesta de Grafton Architects ganó el concurso para la parcela esquinera entre V. Bligny y V. G. Röntgen, donde se aprecia la necesidad de establecer una referencia clara los primeros croquis, en las anotaciones al margen, llenas de información, y en el sistema constructivo resultante, permitiendo comprender las decisiones de diseño:

use long dimension/ usad la dimensión larga; twin blocks/ bloques gemelos; transfer beam, see Salk/ viga de transferencia, ver Salk; datum?, no datum/ referencia, no hay referencia; mountains, valleys/ montañas y valles; beams + ducts/ forjados+ conductos; public space/espacio público; ramped/ en rampa; cars+ peds/ vehículos y peatones/ dropped courts to rew to give light + ventilación to conference level/ dejar patios hacia la parte trasera para dar luz y ventilación al nivel del Aula.

Ecos de obras divulgadas y conocidas, como la Facultad de Arquitectura de Yale, de Paul Rudolph y su espacio central abierto a las areas circundantes, bajo las barras de los pisos superiores.

Se indica el problema, y al lado se grafía la solución, produciendo una arquitectura híbrida y compleja, que optimiza ideas conocidas, fusionando en ellas una lectura nueva. Aunque el lugar plantee dudas, se ofrecen soluciones y se construyen. Baste comparar con propuestas de otro tiempo, como la Escuela de Arquitectura de Yale, de Paul Rudolph, donde, como aquí, una serie de estructuras-puente cruzan el vacío inferior. La huella  dejada por el tiempo muestra  diferencias -ahora con volúmenes más sencillos y directos. Los ecos de Tatlin, de Stirling,  o de compañeros de nuestra área cultural se dirigen ahora a una racionalidad sin concesiones.

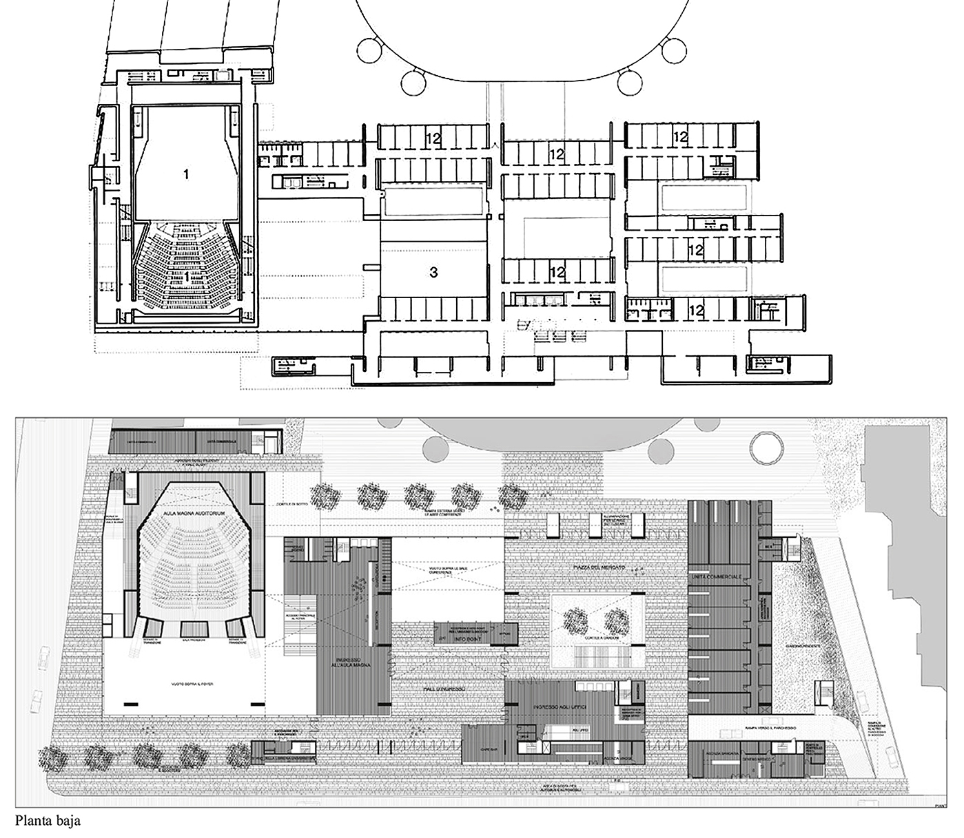
La esquina V. Bigny/ Viale G. Röntgen es utilizada para incorporar una arquitectura contundente, con reminiscencias de arquitectura. constructiva y brutaliza. El Aula Magna y la Sala de Exposiciones se disponen junto al acceso principal. Sobre estos espacios una serie de barras recogen ideas de otros maestros, aquí reinterpretaras.

En la estrategia/ propuesta de proyecto surge la dificultad de la esquina Viale Bligny/ V. G. Roentgen:

-una amplia perspectiva demanda una potente imagen urbana, continuidad del tejido existente, que abra el edificio a una nueva dimensión pública, donde el volumen del Aula Magna no sea un volumen a ocultar. Presenta entonces  la transparencia que toda institución ha de ofrecer para comunicarse con su entorno urbano: el medio es aquí el mensaje.

– la percepción del tejido de V. Bligny se deja ver ya en los primeros dibujos: para recuperar la actividad en la periferia de una gran ciudad,  una arquitectura rotunda,  con referentes de la mejor arquitectura moderna,

– el nuevo edificio queda articulado en ambas calles, cerrado en una y abierto en otra, ubicando allí un acceso principal.

Podemos extraer algunas lecciones de la respetuosa lectura de la propuesta de J. Llinàs. El contexto inmediato (el edificio Velódromo de forma oblonga) lleva a una lectura  consecuente con él, en una lucha no exenta de gallardía. Algo similar sucede en la propuesta de OMA y SANAA para el Campus próximo al Parque, que han de poner orden en la diversidad tipológica; con la ventaja -aprovechada por SANAA- de transparencia y continuidad con los espacios verdes. Aquí el esfuerzo requerido se centra en la densidad. Ha de  introducirse  sin aparentarla.

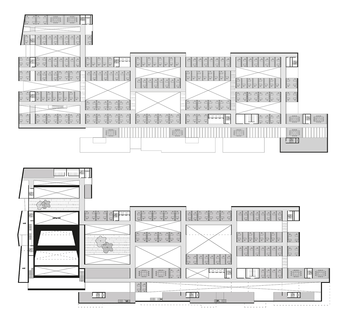
Propuesta de J. Linàs, respetuoso con el edificio Velódromo adyacente, dando pie a dos focos: una construcción en abanico que origina espacios dobles para resolver el diálogo con el nivel de la calle, junto otro foco triangular. El respeto de Linàs con el contexto contrasta con el aprovechamiento de la densidad por Grafton (utilizando la dimensión más larga e introduciendo varios bloques gemelos en torno a patios sobre el vacío de los pisos inferiores, véase edificio de P. Rudolph).

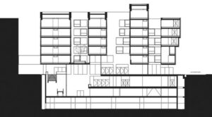
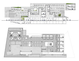
La secuencia de acciones de Grafton Archs. puede seguirse desde la correlación de croquis y primeras maquetas, a las propuestas iniciales, hasta el encaje del nivel que hace las funciones de referencia (datum), a la manera de las plataformas de Utzon. Se ultima la propuesta con el trabajo detallado de las fachadas que en la parte trasera adquiere una plasticidad propia, desde el diálogo existente en los bloques. En el interior los recorridos (secuencia de patios, escaleras y rampas) dota de organización propia al edificio.

Planta de pisos superiores. Planta subterráneo.
Plant 5 y planta 2.

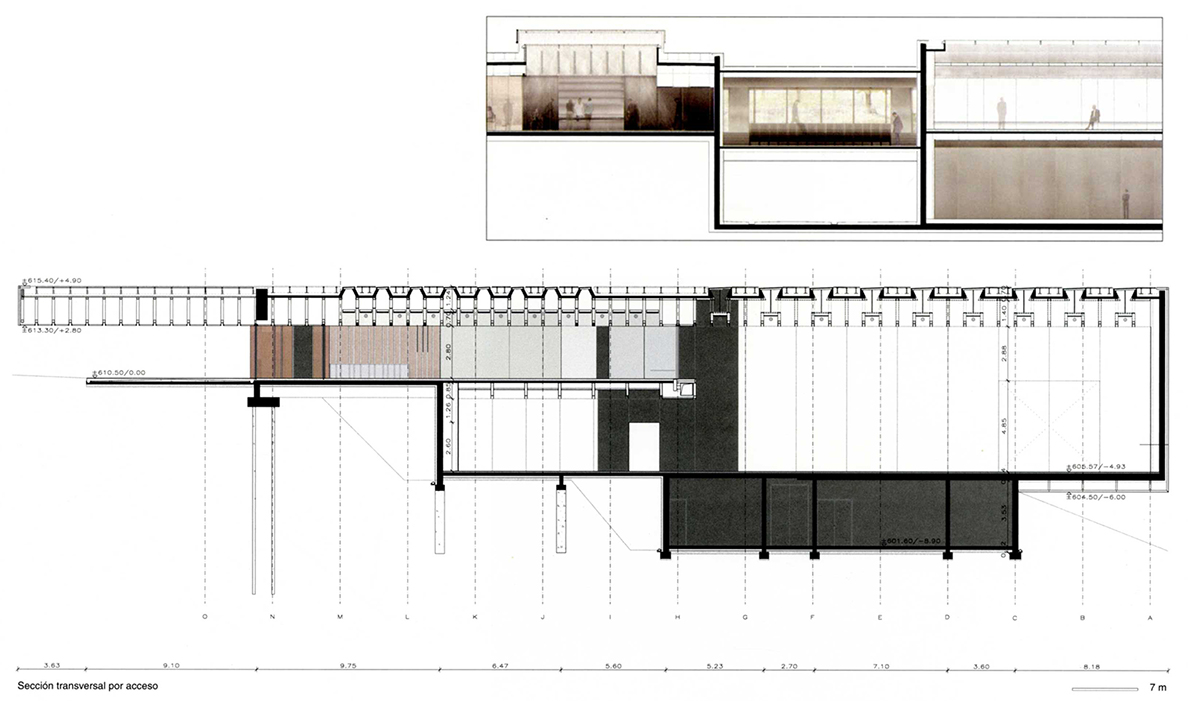
La propuesta va resolviendo las situaciones específicas de cada planta, a las que se llega desde un estudio gráfico (de dibujos de presentación, de maquetas, de croquis previos). Esto es especialmente manifiesto en el volumen del Aula Magna y sus efectos en el nivel de la calle, donde la fachada es retirada del límite del tráfico rodado para dejar un espacio público, diferenciandolo a su vez del acceso principal; hecho que se aprecia en el alzado lateral y en la sección.

Del mismo modo, puede apreciarse al comparar la planta 5 y la planta 2 cómo queda el volumen del alzado principal señalado en puntos junto al volumen rectangular del cuerpo del edificio y sus patios, diferenciando el ancho de la crujía 2 y 4 respecto a la primera (aula Magna) y la 3 y 5 (bloques gemelos situados hacia atrás, junto al edificio Velódromo).

Es decir, seccionando por los patios se puede apreciar la diferente densidad junto a Viale Bligny y en el extremo opuesto, dando una sensación de edificio ligero -también iluminado y ventilado- pese a su superficie construida.

Alzado principal y sección longitudinal (fuente Grafton Archs.).

 

 

La carencia de referencia/ datum puede resolverse mediante una losa que constituye una plataforma o mediante una losa de transferencia que permita unificar la estructura en altura. Soluciones utilizadas por Jörn Utzon, que permiten introducir una modulación y ajuste de tipologías.
En diferentes alturas el edificio se ajusta a la situación estructural.
Maquetas de concurso (fuente Grafton Archs, Ros Kavanagh).
Diferentes modos de gráfica permiten representar conceptos distintos; tal es el caso de los elementos interticiales entre cada área de bloques, o los espacios permeables entre patios o entre el edificio y su entorno. (Fuente Grafton Archs., Ros Kavanagh)

La imagen final del edificio cambió durante el desarrollo del proyecto, incluso en el tratamiento del Aula Magna. Nótese el tratamiento de las Secciones.
E crecimiento en mensula hacia V. G. Röntgen expresa con claridad cual es el alzado principal.

Sección por Aula Magna

El ejercicio que se propone es la representación de la idea de Proyecto en sus elementos esenciales, estructurales:

  • cómo se enclava en el tejido urbano existente, el diálogo del sistema constructivo con el espacio circundante (monumental en la esquina V. Bligny, V. Röntgen; continuidad tipológica en el final de V. Röntgen;…), y
  • la consistencia de los espacios interiores ( circulaciones en la planta principal, con un diálogo hacia el espacio público en la antesala al Aula Magna, espacio doble que incita a la observación desde la calle;  adecuación a pluralidad de actividades en las plantas 2-5).
  • La acomodación al contexto deja ver el propio carácter plural del edificio: a) es perceptible en la agrupación de masas en la sección longitudinal, b) también en la variedad de las secciones transversales, y  c) en las articulaciones del edificio con el contexto (coexistencia del volumen de Aula Magna con los pisos superiores, final del edificio en V. Röntgen. Se muestra asimismo la continuidad del vecindario -las propuestas de OMA y la ganadora de SANAA permiten percibir la densidad de ideas contemporáneas en este Campus, que sólo podemos tratar sucintamente-.
  • La superposición de plantas manifiesta el difícil diálogo entre una fundada estrategia y la sencillez del resultado final. Es decir, la articulación espacial no sólo se produce en la dirección de las vías circundantes, sino también en altura, con sutilezas como la diferenciación de las ultimas plantas para dotar de atmósfera e iluminación a la vía pública.
  • En síntesis, cada estudiant@ podrá elegir algunos de estos caracteres y exponer su síntesis en 2-3 hojas o las que la exposición requiera.

AGRADECIMIENTOS:

La difusión de la arquitectura contemporánea difícilmente podría hacerse sin la generosidad de los autores que exponen públicamente su capacidad de diseño. Sin la  información de la web de Grafton Archs, el trabajo del fotógrafo Merletti, y los medios de difusión -citados en la Bibliografía- que divulgan estos trabajos, sería difícil transmitir una reflexión actualizada sobre la arquitectura actual y sus representaciones.

Este blog tiene una finalidad estrictamente académica, y no se deriva de él ningún beneficio económico. Por ello rogamos a l@s estudiant@s y visitantes azarosos que hagan un uso responsable, reconociendo las fuentes,  la autoría es un derecho moral del creador, que no prescribe nunca.

BIBLIOGRAFÍA Y ENLACES:

https:// graftonarchitects.ie

https://www.floornature.es/ampliacion-de-la-universidad-luigi-bocconi-grafton-architects-4665/

https://www.arquine.com/nuevo-campus-de-bocconi-sanaa/

https://www.pinterest.com/pin/669629038325783880/

http://www3.arquitecturaviva.com/ArquitecturaViva_122_Grafton.pdf

https://www.architonic.com/en/project/grafton-architects-universita-luigi-bocconi/5100607

https://www.dezeen.com/ 2008/10/27/universita-luigi-bocconi-by-grafton-architects/

https://www.inexhibit.com , (copyright Inexhibit 2020 – ISSN: 2283-5474 photo c Riccardo Bianchini).

https://www.plataformaarquitectura.cl/cl/934756/universidad-luigi-bocconi-grafton-architects

Grafton Architects: Università Bocconi, www.divisare.com,November 22, 2017, Photos by Maxima Galati-Fourcade

https://www.arquitecturayempresa.es/el-estudio-grafton-architects-abre-una-ventana-milan-en-la-universidad-luigi-bocconi

Rem Koolhaas, “‘Life in the Metropolis’ or ‘The Culture of Congestion’” Architectural Design 47, no. 5 (August 1977), 319-325. Version en castellano en Tecnecios Blog.

 

2020_21_QD1/ E3_ Caso de Estudio 3/ MIND THE GAP_ Diagramas de la Memoria_Centro F. Garcia Lorca_Granada-arqs. Mendoza-Partida

2020_21_QD1/ E3_Caso de Estudio 3/ MIND THE GAP_ Diagramas de la Memoria_ Centro F. Garcia Lorca_Granada-arqs. Mendoza-Partida.

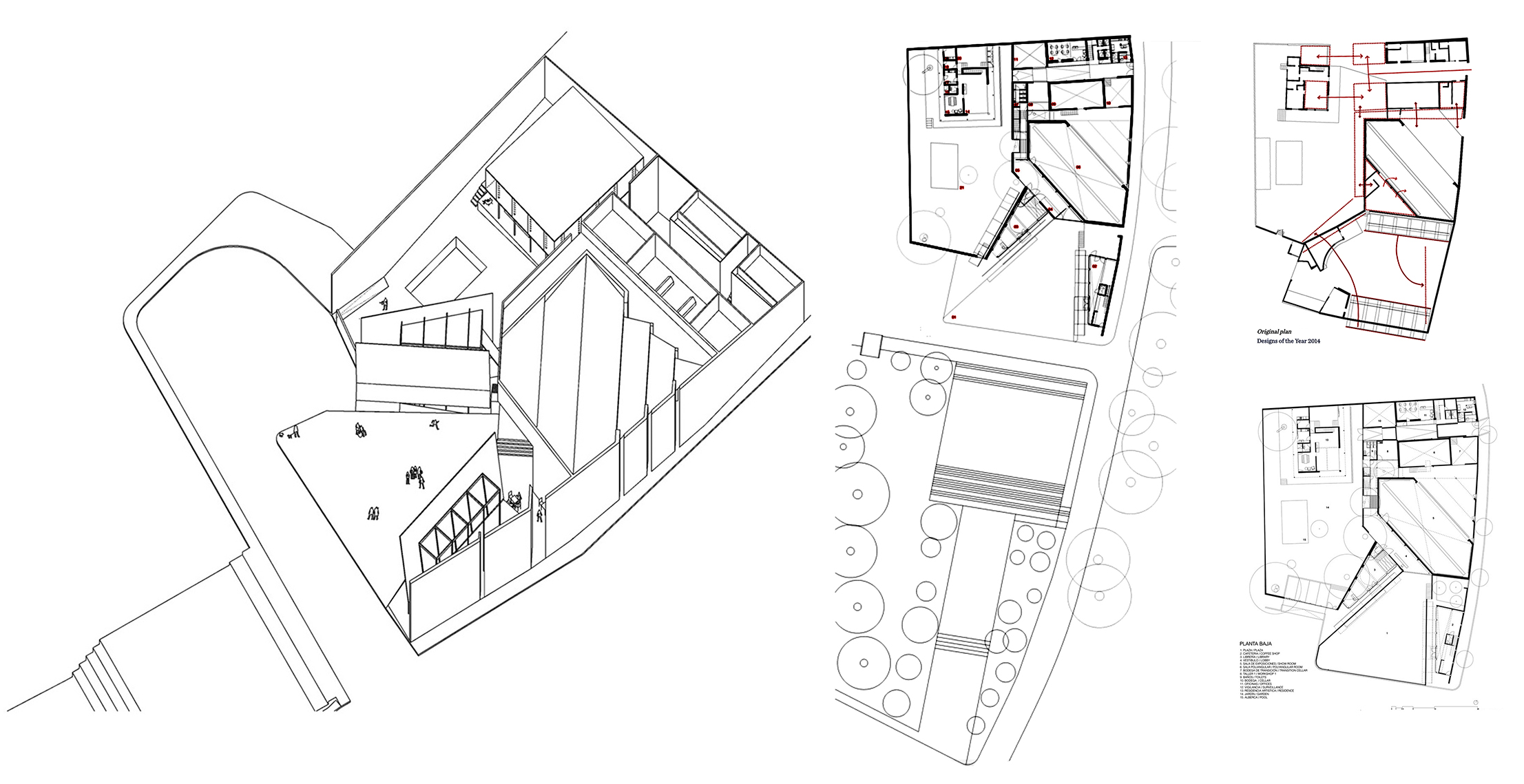
Maqueta del edificio propuesto. Lectura del entorno al modo de Nolli.

Los autores expresan las intenciones de proyecto, textual y gráficamente:

Los límites entre contexto urbano histórico y arquitectura contemporánea se difuminan extendiendo el umbral mediante una dinámica construcción de hormigón visto. El edificio muestra la dificultad de trabajar en los centros históricos, estableciendo una relación natural y continua con el centro histórico de Granada a diferentes escalas de intervención. A nivel del suelo, el edificio se funde con la Plaza de la Romanilla en un espacio continuo, un “Pasaje-Foyer”. Los límites entre lo urbano y lo arquitectónico se desdibujan por un amplio umbral que emerge entre ambos espacios.

En la cubierta, el edificio adquiere una escala menor, más doméstica, al fragmentarse para integrarse en el entorno y completar, por inserción, el tejido urbano circundante.

La propuesta geométrica evita construir un volumen, de modo que la fuerza de su imagen deriva de esculpir un vacío, el umbral que conecta el espacio urbano con el edificio. De este modo el acceso principal se convierte en una gran entrada donde la luz y la sombra son la principal interfaz para un espacio tridimensional lleno de relaciones espaciales.

El edificio es una inserción urbana exitosa desde su concepto estructural. Una búsqueda para construir una planta abierta, donde todos los elementos de apoyo permanecen alrededor del perímetro de la parcela. La estructura y la geometría van de la mano, y el hormigón no sólo se utiliza como elemento de apoyo, sino como el principal material de acabado. La integración de este material casi industrial en un centro histórico requirió un tratamiento especial con diferentes texturas y patrones para lograr el efecto de una piedra artificial, de mayor calidez y diálogo con el entorno.

Sección urbana

El umbráculo deriva de la idea de los toldos de mercado y restablece la vocación inicial de la trama, la de un mercado. De esta manera, el edificio realza los límites difusos en los que es difícil definir el cambio de percepción de una parcela totalmente limitada a una abierta y continua.

Véase http://mendozapartida.com/, http://baxstudio.com/, Pedro Pegenaute en Vimeo

Agradecimientos: a los autores. Se ruega hacer un uso responsable de las imágenes.

***

Tejido urbano del entorno de la Catedral. Puede observarse la proximidad, casi diálogo de ese conjunto y el Centro F. García Lorca.

Antes de entrar en materia es oportuno leer el contexto en que se está operando. Nos hallamos en uno de los centros urbanos de mayor importancia patrimonial  en la cultura española:  las intervenciones  de Diego Silóee en la Catedral, con la Capilla Real y la Sacristía adyacentes, o los compromisos adoptados tras la decisión de no construir la segunda torre, al percibir fallos en la cimentación, conducen a intervenciones híbridas y mezclas de estilos,  matizaciones del modo operativo en ese Renacimiento, específico, distinto, bien descrito por Manuel Gomez-Moreno  en “Las Aguilas del Renacimiento Español” (1941, CSIC; reeditado en Xarait en 1983) y restituido exhaustivamente por Antonio Almagro Gorbea.

La planta, en apariencia unitaria e íntegra, presenta una articulación entre las naves y la girola donde Silóee se adelanta a la complejidad del espacio barroco, con una insólita capacidad estructural. Nótese la función de los contrafuertes en la sección dibujada por Heylán.

Silóee asume el ideario renacentista de modo singular: articula las naves y la girola, como desvelan la planta y el volumen exterior, con recursos propios del gótico en la girola (los contrafuertes que se ven en la sección de F. Heylán). Asume la difícil construcción de arcos y bóvedas en la capilla principal, controlando la difícil geometría.  La singularidad de la Capilla principal la hace compatible con el orden corintio de las columnas en las naves, muy sofisticado en sus articulaciones. En las vistas diagonales pueden leerse el trasdós de bóvedas, las columnas de las naves y la capilla mayor, con un uso exquisito  de la dimensión vertical.

Hallamos el mismo  en la Cartuja de la Asunción de Nuestra Señora de Granada, donde varias intervenciones se entrelazan  en recorridos donde podemos seguir las articulaciones renacentistas, y, sin romper su carácter, se añaden nuevas construcciones barrocas; en éstas el exceso de ornamento unifica los muros, provocando que alcemos la mirada a las bóvedas.

Sirven las ideas de P. Frankl  en su análisis de Vierzehnheiligen al usar  la noción de interpenetración. No existe como tal en la planta de la Catedral, ya que Silóee la sectorial, y en sección parece una premonición, una sistemática traslación de matices, desde la girola, a las naves y la fachada.

¿Qué nos dice P. Frankl? : “en alguna parte (es difícil decir dónde) el espacio que sugieren (las bóvedas) se funde con la parte homogénea del espacio inferior”“Una segunda dificultad es así́ añadida por el espacio total complejo, pues las formas individuales mismas son tan sólo sugeridas a la mente inquisitiva. Las mentes de más del noventa por ciento de los visitantes a esta iglesia de peregrinaje capitulan ante tal dificultad, y esto es precisamente el objetivo: apelar no a la mente sino a la imaginación que se rinde ella misma ante lo ambiguo y lo incontrolable.

Operar frente a estos prodigios no puede hacerse desde una mera transposición de la estructura de plantas de la construcción residencial. La situación requiere “otra cosa”. Pero ese algo diferente podemos trazarlo y seguirlo en el entorno próximo.

Naves de la Catedral. Dibujo de Dehio.
Secciones iterativas, desde la fotografía de Laurent, cuando existía el coro, la de Garzón y una reciente de Iago Mehring, de la fachada. Comparando con la sección dibujada por Dehio ( más abajo) podemos entender cómo esta sofisticación de la dimensión vertical se va trasladando. La torre única, construida así por problemas de cimentación en su simétrica, se convierte en un hito adicional en la zona.

Volvamos ahora al edificio y proyecto que nos ocupa. Llama la atención la importancia del umbral, desde dentro y desde fuera (pues el umbral facilita su relación dialéctica, que se percibirá con claridad en las plantas y secciones).

Centro José Guerrero en la zona que nos ocupa.

¿Qué tenemos? Un área con diversos centros culturales, donde se reflejan las artes plásticas, la obra poética de Federico García Lorca, y algunas manifestaciones del más sutil Renacimiento. En el Centro FGL, una entrada que hace de mediadora entre dos alineaciones de construcciones en ángulo, un umbral que da transito a multiples experiencias. Pero ¿qué es una puerta, qué es un umbral?

Umbral del Centro F. Garcia-Lorca. Vista de la Torre/ hito de la Catedral desde ese ámbito de transición. Articulación de los edificios colindantes con el acceso al Centro.

O. Friedrich Bollnow pondera las cualidades de la puerta y el umbral: una primera consideración es tratar la puerta como le sucede a quien está bajo su protección, se encuentra en su vivienda, «en su casa». La situación cambia cuando, desde el exterior, se entra en  un  recinto,  en la esfera vital de otras personas o – si consideramos que ese territorio íntimo es sagrado-  como en el caso  del templo, domicilio de la divinidad. Por ello  el umbral tuvo alto significado ritual, conservado  en  costumbres rurales. El umbral  es tratado de un modo especial. Algunas personas se inclinan hacia él y lo tocan respetuosamente con la mano. Es mal augurio tropezar con él, por ello se evita.

Mircea Eliade  indicó  la  importancia  del  umbral como límite entre lo sagrado y lo profano,  contribuyendo  a  la  comprensión   de  las  costumbres  actuales.  «El  umbral y la puerta muestran de modo inmediato y concreto la anulación  de la continuidad  espacial;  (…) son a la par  símbolos  y  mediadores  de  la transición.» La  puerta como lugar de paso adquiere  entonces un  significado simbólico más profundo :  como  transición  hacia  otra vida: « Pasad  por  la  puerta estrecha».

El umbral desde diferentes ángulos, articula el tejido preexistente sin detrimento de una nueva configuración.

Gaston Bachelard va más allá en su “Poética del Espacio” reflexionando sobre un libro austero marcado por el desierto (Jean Caubère: Déserts. Ed. Debresse, Paris) y contraponiendo el umbral al nido:                                                 El nido tibio y tranquilo…/ donde canta el pájaro….. nos recuerda las canciones, los encantos/ el umbral puro/de la vieja casa.

El umbral aquí es acogedor, no impone su majestad. Las dos imágenes: el nido tranquilo y la vieja casa, en el marco de los sueños, tejen la fuerte red de la intimidad. Y las imágenes son sencillas, sin alusiones pintorescas. Se produce un acorde especial  al evocar el nido, el canto de un pájaro, encantos que recuerdan la vieja casa, el primer hogar. Bachelard se detiene y medita, de un modo pertinente aquí: ….pero para comparar tan dulcemente la casa y el nido, ¿no deberíamos haber perdido la casa de la felicidad? Hay tristeza en esta canción de ternura. Al volver retornamos a la casa antigua como regresamos al nido, los recuerdos son sueños, la casa del pasado se ha convertido en una gran imagen, la gran imagen de la intimidad perdida.

Sección longitudinal mostrando umbral y acceso a la Plaza. Pueden hacerse varias lecturas: el acceso el pasaje/ galería y la transición posterior hacia las calles traseras.
Secciónconcentrada en la transición del umbral.

Tiene sentido comparar la situación de esta imaginación de Bachelard con las imágenes que aparecen en el Centro F. García Lorca: los valores desplazan a los hechos. El pájaro es un trabajador sin herramientas, su herramienta es el propio cuerpo; también aquí la casa construida por el cuerpo, para el cuerpo, tomando su forma desde el interior, como una cáscara, en una intimidad que trabaja físicamente.

Bachelard irá  más lejos cuando se ocupa de la dialéctica del dentro y del fuera: La naturaleza anormal de la imagen no significa que sea fabricada artificialmente. La imaginación es la facultad más natural que existe. Sin duda, las imágenes que vamos a examinar no podrían inscribirse en una psicología del proyecto, ni siquiera en un proyecto imaginario. Cada proyecto es un contexto de imágenes y pensamientos que presupone un control de la realidad. Por lo tanto, no tenemos que preverlo en una doctrina de pura imaginación.

Incluso es necesario continuar una imagen, es inútil detenerla. Es suficiente para nosotros que lo sea. (Bachelard p. 100, p 202). Se entiende entonces aquella afirmación de E. Miralles insistiendo en que un proyecto no se acaba al construirlo.

La concentración en la Plaza La Romanilla produce una inversión perceptiva: como si se hiciese opaca. Las transiciones desde ella a las calles traseras al Centro, y las visuales de la Torre única de la Catedral, o del umbral de acceso desde diversos puntos de vista motiva una serie de diagramas que operarán activamente en la configuración de proyecto; después, permiten entender su diseño.

En este tráfico de imágenes emerge el uso de los diagramas. La planta al estilo de Nolli, con plazas vacías entre un laberinto de construcciones, se solidifica cuando la contemplamos, estudiándola como un campo de fuerzas.

PB, P1, Mostrando los niveles del umbral en contacto con la plaza y con transición a todo el edificio.

En la planta baja el proceso de abertura/ concentración hacia el tránsito, y expansión apenas se ha traspasado el límite entre exterior e interior puede seguirse con claridad y es pertinente remarcarlo. El contraste es brusco en el sector exterior, y se percibe como, traspasado el límite, cuando ya podemos decir que nos hallamos en un interior, las superficies vidriadas y la planta ligeramente trapezoidal indican otro proceso de apertura. La coordinación con las secciones permite ver la escasa profundidad del bloque exterior, cuya ventilación/ iluminación es respetada.

Niveles superiores P2, P3. Merece especial atención la relación de la escalera que vincula todo el edificio y las relaciones entre las singularidades del programa.

Encontramos más retos en los niveles superiores. Por el vinculo  necesario con el juego de cubiertas –

Sección transversal, paralela al escenario del auditorio.
Sección longitudinal, por el eje del auditorio. Nótese la iluminación posterior y la escalera que articula todo el edificio.

 

 

Vestíbulos, galerías-pasajes donde la transición del espacio público al interior y de nuevo al exterior es evidente.
Sección longitudinal explicando entradas de luz y matices de los umbrales.

Desarrollo del ejercicio. 

Desde la lectura del edificio y sus relaciones con los espacios públicos adyacentes nos centraremos en la idea de proyecto del Centro F. García Lorca, explicando diagramáticamente las relaciones con el entorno.

En las plantas, es pertinente centrarse en las articulaciones, y como el espacio se dilata y contrae según cual sea el ámbito del umbral/ pasaje/ transito al exterior, marcando gráficamente los conectores (escaleras, espacios inter-medios,  espacios disyuntivos).

la correlación con las secciones ha de permitir una explicación -y disfrute- de este espacio.

La técnica es libre y dedicaremos dos semanas. Fecha final de entrega: 14 de octubre a las 23:59 en Atenea.

BIBLIOGRAFIA:

http://mendozapartida.com/, http://baxstudio.com/, Pedro Pegenaute en Vimeo.

Almagro Gorbea,Antonio, 2010: Catedral de Granada.

 Almagro Gorbea,Antonio, 2010:Planimetría de la Cartuja de la Asunción de Nuestra Señora de Granada / Antonio Almagro Gorbea
Granada : Consejo Superior de Investigaciones Científicas, 2010.

Gomez-Moreno, Manuel, 1941, 1983: “Las Aguilas del Renacimiento Español” (1941, CSIC; reeditado en Xarait en 1983).

 

2020_21_ QD 1/ E2_Caso de Estudio 2/ MIND THE GAP_ Yale Art Gallery_

2020_21_QD1 / E2_Caso de Estudio 2/ MIND THE GAP_Galería de Arte de la Universidad de Yale, New Haven, Connecticut 1951-1953

Kahn recibe el encargo de esta obra, hallándose en la Academia Americana en Roma, gracias al apoyo del arquitecto George Howe y el entonces joven crítico Vincent Scully. Romperá con ella la ortodoxia respecto al Movimiento Moderno en la arquitectura oficial de EEUU, hecho decisivo para su desarrollo posterior a sus cincuenta años.

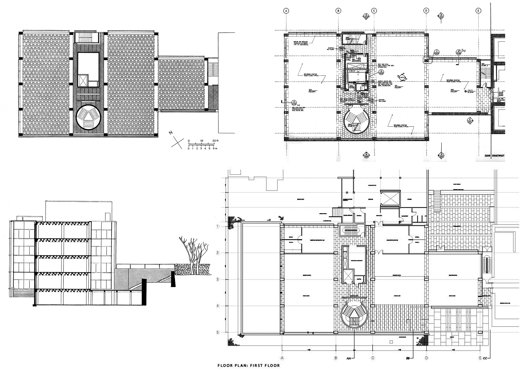
Manzana definida por la Galeria de Arte y sus vecindades. Descripción del lugar realizada en un a carta (fuente Giurgola, Mehta).
Idea preliminar con estructura de pilares y viguesas sobre los que apoyan bovedillas. En los apuntes preliminares puede verse la apariencia de los techos a través del corrimiento de cristal.
Planta cenital, planta tipo. Sección definitiva (nótese la diferencia entre el encuentro de forjado y fachada de Chapel Street, respecto a la del patio). Planta de restauración reciente. Fuentes Complete Work & AD Classics.

Como puede verse en la planta de ubicación, la ampliación cierra la manzana rectangular con un volumen paralelepipédico, de manera que las preexistencias configuran un patio ajardinado configurado mediante un aterrazamiento de niveles. La operación es sencilla, con gestos elementales: el volumen exento tiene adjunta una galería más estrecha y de igual altura, ligeramente retrasada para permitir la entrada. 

La idea inicial consistía en un volumen elemental cuyo forjado evoluciona en el desarrollo de proyecto, desde un techo de bovedillas a una estructura compleja de casetones tetraédricos donde pueden ocultarse las conducciones de ventilación y otros sistemas de acondicionamiento.

Casetones tetraédricos durante la puesta en obra, definición geométrica y su relación con ventilación y conducciones. Una complejidad que no es tan evidente desde el nivel de piso, propiciando un contraste util para las áreas de exposición.
Aspecto del interior en diferentes momentos . La textura del techo unifica y posibilita la diversidad de caracteres expositivos.

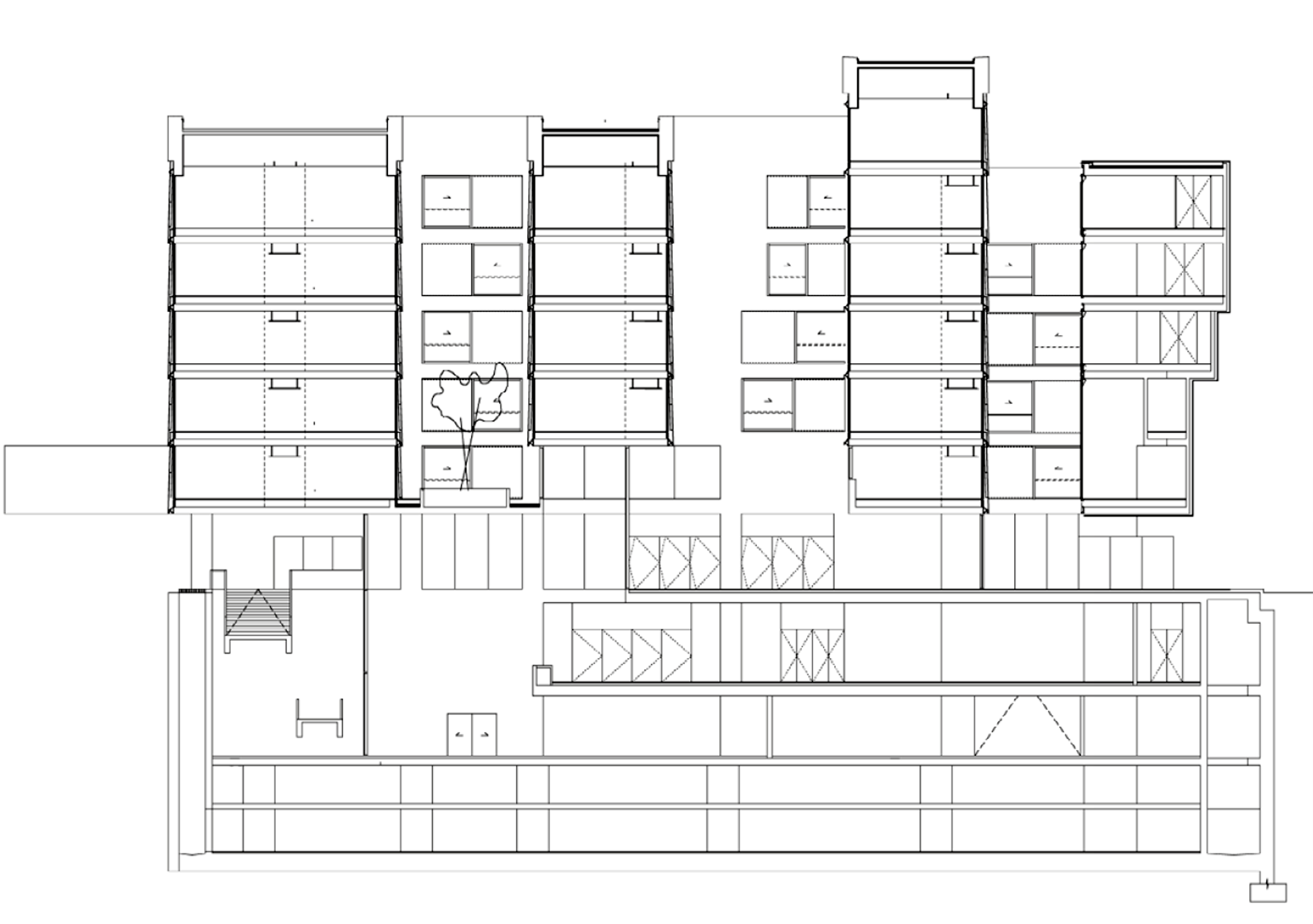
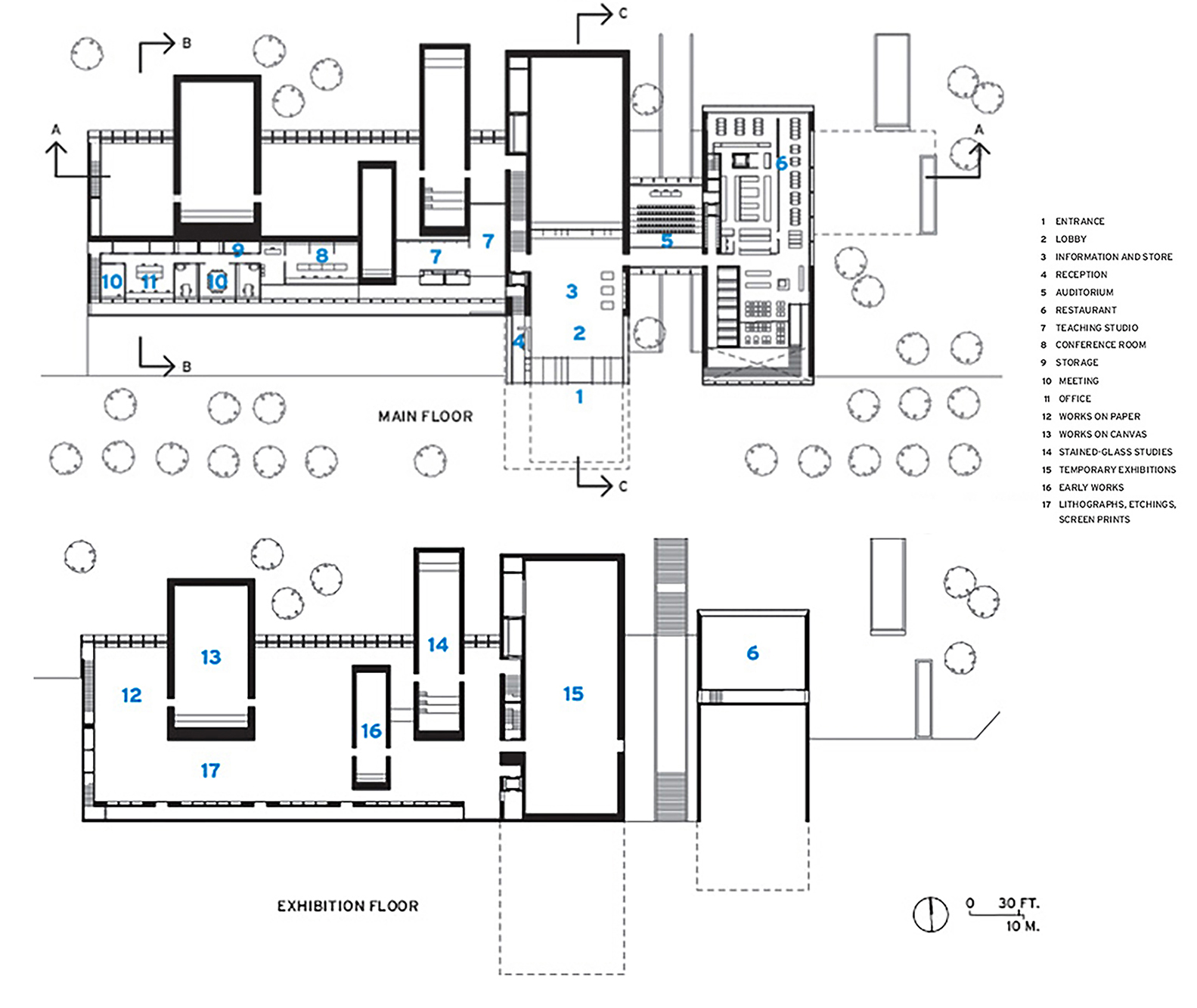
La sabiduría geométrica de Ann Griswold Tyng, con infrecuentes vinculos simbólicas, se deja ver  en ese forjado, que permite establecer contrastes acordes con la diversidad de obras expuestas en esta Galería de la Universidad de Yale, de la que este proyecto era una ampliación. Debía albergar el departamento de arquitectura mientras se finalizaba el edificio diseñado por Paul Rudolph (cuyas relaciones con la idea de proyecto para la Universidad Luigi Bocconi de Grafton Architects son dignas de consideración). Aquel edificio debía ubicarse al noroeste de la Galería, al otro lado de York Street (véase plano de situación).

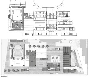
Secuencia de plantas: las dos últimas para el departamento/ Escuela de arquitectura presidido por el arquitecto G. Howe, utilizado para este fin hasta que se ejecutase el edificio de Paul Rudolph. Planta típo y de acceso a la Galería. Situación y sótano. (Fuente Complete Works).

El edificio se concibe simple y alto, diferenciando espacios sirvientes y servidos, hecho que se exhibe con claridad en el centro -con una llamativa escalera triangular inscrita en un cilindro que separa en dos el volumen principal. Las plantas primera y segunda se destinan a exposición y las dos últimas a la escuela de arquitectura, que en un inicio era el destino del edifico. Los espacios están revestidos de paneles.

Alzado Nordeste, con su fachada ciega.
Secuencia de edificios de Chapel St., continuidad pese a la diversidad.

La imagen exterior queda caracterizada por la fachada ciega de ladrillo a Chapel Street, con bandas de piedra caliza, que incrementan su carácter longitudinal, en contraste con las otras fachadas de cristal. Como ya se ha comentado, el retranqueo perpendicular de la entrada principal, define y refuerza la unidad de este frente del edificio, que no se pierde en restauraciones posteriores. Contrastan los casetones en forma de tetraedro de los forjados de hormigón, aprovechando sus intersticios para las instalaciones, y ofreciendo un contrapunto de la sencillez de los espacios diáfanos interiores. Así como la diferencia entre esta fachada ciega y los muros cortina del jardín.

Las fachadas a York St. y el patio de la manzana son muros cortina de cristal. Puede verse el carácter diverso respecto al interior, incluso a la idea inicial de proyecto.
Alzados a patio trasero, a York St. y fachada de entrada desde Chapel St.

Tyng aporta su sentido de la geometría, compartido con las influencias de Buckminster Fuller. Y con la construcción de un nuevo forjado de hormigón armado y ligero donde se incorporan techos, suelos y servicios en un solo sistema de tetraedros huecos, se eliminan falsos techos y permiten usos diversos,  exposiciones y fines varios.

Kahn se inicia en ese equilibrio entre una ordenación de serenidad clásica, una monumentalidad esencial, y su componente geométrico-estructural que singulariza la obra realizada desde entonces.

Alzado de renovación reciente. Axonometria de cambios sugeridos. Fuente AD Classics.

Las restauraciones recientes permiten comparar la contención del proyecto inicial y el difícil compromiso con la variedad de edificios en esta manzana. Ese difícil compromiso es el reto del ejercicio, asumirlo y desarrollarlo al comunicar el proyecto.

Bibliografía:

RONNER, Heinz; JHAVERI, Sharad, and Institute for the History and Theory of Architecture, ETH, Zurich: Louis I. Kahn. Complete Work 1935-1974. Birkhäuser, Zurich, 1987.

Romaldo Giurgola, Jaimini Mehta: Louis I. Kahn, Arquitecto. Ed. GGili, Barcelona, 1976.

Brownlee, De Long, 1998: Louis I. Kahn. en el reino de la Arquitectura. G. Gili, Barcelona.

A&V Monografías 44, 1993.

 AD Classics:Yale University Art Gallery/Louis Kahn/ArchDaily

https://www.google.com/search?q=yale+art+gallery&safe=active&rlz=1C1EJFA_enES787ES787&sxsrf=ALeKk00wzb0Hk_8Fe5XFJc353mycFRz3Sg:1594910014925&tbm=isch&source=iu&ictx=1&fir=KKVTcY8z7nYbkM%252CdESgX2ZnsFMDLM%252C_&vet=1&usg=AI4_-kRB_N1zITZfifEjad4feDVmNhPI3g&sa=X&ved=2ahUKEwi1j43n_tHqAhXkA2MBHZrbAZ8Q9QEwCXoECAgQEw&biw=1341&bih=867#imgrc=KKVTcY8z7nYbkM

(accedido 30 julio 2020)

AGRADECIMIENTOS: a José Luis Colmenares, y seguidores en www.facebook.com, diseminando hasta el ultimo rincón del globo las obras de Kahn en  YES, LOUIS KAHN!

Webs sobre Yale University Art Gallery. Renovation and Expansion. New Haven, Connecticut. US. 1951. Architect: Louis I. Kahn:

https://divisare.com/,

https://news.artnet.com/

https://www.architecturalrecord.com/

https://www.behance.net/

https://en.wikiarquitectura.com/

http://www.ennead.com/

https://www.cntraveler.com/

TAREA A REALIZAR:

Iremos descubriendo que el fuerte vínculo con el lugar adquiere aquí otras dimensiones, relacionándolo con la afirmación de una arquitectura que deja atrás convenciones, proponiendo nuevos  métodos de proyecto. La información es ingente, incluso excesiva, sobre el proyecto del estudio de Kahn y renovaciones posteriores, introducidas aquí en la medida en que puedan ayudar a comparar lo ya realizado y las cortapisas que cualquier cambio conlleva.

Primero, es obligatoria una lectura profunda de la propuesta.

Segundo, debemos tomar posición (planta, sección, singularidades de la manzana, sencillez junto a complejidad, geometrías constructivamente resueltas, posibilidades de los materiales utilizados, diálogo con la ciudad,…).

Tercero, deberemos elegir un aspecto que atraiga el interés de cada estudiante, y desarrollarlo debidamente…

Dedicaremos dos semanas, hasta el 30 de setiembre. En paralelo, informaciones adicionales sobre la visión de la arquitectura en el estudio de Kahn y su entorno.

“El sentido del lugar” (Romaldo Giurgola, Jaimini Mehta: Louis I. Kahn, Arquitecto. Ed. GGili, Barcelona, 1976)

(Antes de entrar en materia imaginemos una conversación de Louis Kahn con Luis Barragán y el Dr. Jonas Salk en el Patio del Instituto Salk: “No pondría un árbol o una hoja de hierba en este espacio. Debiera ser una plaza de piedra, no un jardín”. Yo [Louis Kahn] miré al Dr. Salk y él a mí y ambos sentimos que esto era profundamente correcto. Percibiendo nuestra aprobación, (el Dr. Salk ¡) añadió alegremente, “si hace de esto una plaza, ganará una fachada, una fachada al cielo”).

Las ideas de Louis Kahn sobre el hombre están íntimamente ligadas a su concepto del lugar, término al que daba un sentido muy particular. La palabra «plaza» es corriente, denota algo que existe y que, referido a la medida humana, significa la necesidad de estar, de poseer y, a veces incluso, de conquistar. La plaza puede ser un lugar de aislamiento o de encuentro y es siempre un punto de contacto con el emplazamiento, sea éste natural o artificial. Ahora bien, resulta patente que el movimiento moderno de la arquitectura ha descuidado excesivamente el sentimiento humano y lo ha esquematizado con otra medida.

En lo que se refiere a los conjuntos, la arquitectura antigua tenía en cuenta, en todo el mundo y muy cuidadosamente, las condiciones humanas: el estilo, y si se quiere hasta el «aire», señalaban muy claramente su utilización: ceremonias, juegos, fiestas o paseos. Gracias a una prolongada tradición, la arquitectura clásica y gótica poseían una expresión cuyos rasgos indicaban inmediatamente su destino.

La arquitectura clásica era tan universal que se adaptaba fácilmente y sin grandes cambios a todos los países del mundo y a los programas más diversos; y es que, en el fondo, es indiferente el aspecto que adopte la expresión arquitectónica a condición de no fracasar en la utilización de la obra hasta el punto de hacerla ilusoria. El porche modesto y sencillo de una hacienda mejicana tiene una autenticidad más evidente que la arquitectura más indiscutiblemente moderna desde el punto de vista de la técnica y la estética, pues con toda su sencillez sabe crear un espacio, un lugar, condición esencial de partida. Pero, al parecer, no se pensó en tal cosa cuando se proclamaron los principios de la nueva arquitectura. La fe que se depositaba, a pesar de las tendencias del movimiento moderno, en las reglas clásicas de las bellas artes ha persistido, si bien el sentido del espacio se ha visto ahogado por las quimeras de la preeminencia de la función y de la técnica.

Los arquitectos modernos continuaron ilusionándose con las definiciones abstractas de la estética moderna, cuyos principios apenas si se alejaban de las antiguas fórmulas, hasta el día en que la amplitud de las construcciones alcanzó tal grado que fue preciso cuidar más el marco en que se situaba la arquitectura que la arquitectura misma.

Las guerras y la producción material, los nuevos sistemas políticos y las teorías económicas vinieron a sumarse a la confusión de las ideas. Por un lado, estaba el desinterés cada vez mayor que hacia la arquitectura demostraba un público cansado de la monotonía de las fachadas prefabricadas y, por otro, ese fanatismo que asimila la arquitectura a postulados ideológicos o políticos. Para Louis Kahn no es posible precisar fácilmente la noción de lugar mediante una imagen.

Tenemos, por una parte, las exigencias humanas y, por otra, el emplazamiento donde el programa debe hacerse realidad. De laalianza entre la idea y la figuración, entre las necesidades y la topografía resulta un espacio cuyos contornos no vienen definidos inmediatamente y cuya organización se determina por la yuxtaposición sensata de las partes constituyentes.

De la misma manera que no bastaría con una definición para tener un automóvil o un avión, tampoco un lugar, por atrayente que sea, adopta su verdadero rostro sin que la mano del hombre lo moldee, le imponga la huella de su presencia.

La arquitectura nació seguramente en el momento mismo en que se puso un techo sobre cuatro pilares; pero en realidad no ha existido de verdad hasta que el hombre decidió el emplazamiento de su obra.  Es esta determinación la que ha conferido a la arquitectura su verdadera razón de ser en el espacio.  Y esto es tan cierto que, sin esta acepción, se cae inmediatamente en lo abstracto, que nada tiene que ver con la arquitectura.

Por otra parte, si se pretende resolverlo todo apoyándose en datos naturales, se cae en la imitación, procedimiento que, en. lugar de ser constructivo, deviene destructivo y suele rebajar el objeto que se quería exaltar.

En Kahn, por el contrario, el sentido del lugar procede de una fe muy antigua de la que él extrae virtudes que el mundo sin fe ha olvidado. Los lugares que crea están realmente destinados a la vida de las gentes.  El laboratorio Salk, el laboratorio Richards, la biblioteca de Exeter, el museo de Fort Worth son lugares de un innegable carácter social donde los espacios se ajustan perfectamente a las condiciones humanas. A menudo, estos edificios están concebidos como recintos de sólidos muros que no dejan adivinar la flexibilidad de las circulaciones interiores, configuraciones que corresponden, por dentro, a la necesidad de reclusión. y por fuera a la de expresión simbólica.

Ensanchando el concepto de «institución», Louis Kahn define el «lugar» como receptáculo de acciones y como expresión de necesidades humanas.

Los baños del Centro Comunitario de Trenton y los espacios de la biblioteca Exeter muestran claramente la transición del exterior al interior, el paso de la zona pública a la semipública y a la privada. Existe una gradación sutil que va del ruido al silencio, de la luz diurna a la  luz  difusa  de las  habitaciones,  del tumulto de los pensamientos a la calma de las reflexiones íntimas. Antes de decidir la distribución de una planta o la forma de una cubierta, Kahn se preocupa sobre todo de crear lugares que susciten la sensación de una vida adecuada.

¿Cómo era Louis Kahn? Dejemos que José Luis Colmenares nos lo explique:

Louis (Isadore) Kahn en retrospectiva… Jose Luis Colmenares,

Público

https://www.facebook.com/groups/862146787142847/permalink/3273257289365106/

https://www.facebook.com/media/set/?set=a.10158247084559438&type=3&__cft__[0]=AZW6qj_nrVSaulCoIEnZI2GM9xMiZPquZEnXX4vPInm7j_OfkBoM-kuqm1D9oy-sFHRz1JB40tvxNCAHySW2ZNBEFIDYU-TgyTqSW97d4xfdOCAxqT59TydzDLXBDBMV6xReCik7MFr7TxY5FulzzyataW2P9d6PQHqboOj85s48LA&__tn__=-UK-R

Louis (Isadore) Kahn (cuyo nombre original era Itze-Leib Schmuilowsky) nació en Kuressaare, isla de Saaremaa, en Estonia el 20 de febrero 1901, en el seno de un humilde hogar judío. Cuatro años más tarde su familia emigró a los Estados Unidos, temiendo que su padre fuera reclutado por el ejército durante la guerra ruso-japonesa. Louis Kahn. Se crió en Filadelfia y adquirió la nacionalidad norteamericana el 15 de mayo de 1914.

Fue educado en una rigurosa tradición Beaux-Arts, con su énfasis en el dibujo, en la Universidad de Pensilvania. Después de graduarse en 1924, Kahn viajó por Europa y se instaló en la ciudad medieval amurallada de Carcassonne, en lugar de quedarse en las cunas del clasicismo o del modernismo. En 1925–1926 Kahn fue diseñador jefe de la Exposición del Sesquicentenario (Filadelfia-PA, 1926), bajo la égida del celebérrimo Paul Cret. A partir de 1947 enseñó durante una década en la Universidad de Yale; en la que gozó de una gran influencia. Posteriormente se trasladó a la Universidad de Pensilvania donde, por muchos años, fue también docente de tremenda importancia. Entre sus alumnos más destacados se encuentran Moshe Safdie y Robert Venturi.

Kahn siempre se involucró profundamente en todos sus trabajos. Supo, como muy pocos de sus contemporáneos, reinterpretar el estilo internacional de forma nada convencional y de modo harto original y creativo, inspirándose a menudo en la arquitectura antigua. Sus trabajos reflejan su interés por la luz y los materiales. Isamu Noguchi se refirió a él como “un filósofo entre arquitectos”; amén de haber contado con la decisiva asistencia y colaboración de su coterráneo (también nacido en Estonia), el notable Ingeniero estructural August Komendant.

Louis Kahn nunca se esforzó mucho por congraciarse con los clientes, por lo que no fue sino hasta que tuvo cincuenta y un años que completó su primera gran construcción: la extensión Galería de Arte de la Universidad de Yale (New Haven-CT. 1951-53).
Para cuando llegó a los sesenta años, el hombre bajo de corbatas de moño flojas, que se peinaba hacia adelante para ocultar la calvicie, había alcanzado fama internacional con la construcción de los Richards Medical Laboratories en la Universidad de Pensilvania (Filadelfia-PA. 1957-64). Constaba de torres apiladas de laboratorios sin columnas, y fue el primero de sus proyectos que articuló la diferencia entre “espacios servidos y servidores”, los segundos de los cuales eran las escaleras, ductos de ventilación y otras redes de apoyo. Los albergó en estructuras aparte que parecían chimeneas y recordaban las torres de San Gimignano de Italia, que había esbozado unos años antes.

Sus enérgicos dibujos pastel representan templos en ruinas del mundo clásico, desde Corinto hasta Roma y de Luxor a Giza. Fueron precisamente los viajes, que realizó en los años 50, los que lo llevaron a pensar que la esencia de la arquitectura sólo se revelaba del todo cuando alcanzaba el estado de ruina. Vacía ya de función, una construcción podía entonces hablar sólo de cómo había sido hecha. Esa idea llegó a definir su trabajo más importante, que completó en los siguientes veinte años.

Kahn describiría sus obras en construcción como “ruinas al revés”. En Dhaka, eso le dio resultados especialmente buenos: cuenta la leyenda que, durante la guerra de liberación de Bangladesh en 1971, los bombarderos no tocaron el lugar donde se construía su Asamblea Nacional porque tomaron el misterioso complejo celular por las ruinas de un sitio histórico antiguo. Como destaca la muestra, sin embargo, las construcciones no tenían rastros de pretensión estética ni de regodeo fetichista en lo arcaico. Las paredes perforadas de las construcciones de Dhaka son una herramienta vital, dado que protegen los espacios interiores de la luz solar directa y permiten la ventilación. Como dice Von Moss: “Quisimos mostrar que, detrás de esa fachada de neoclasicismo y revival histórico, Kahn basó sus construcciones en la comprensión del entorno”. Kahn estaba arruinado cuando murió. Su pequeño estudio de Filadelfia tenía una deuda de 500.000 dólares.

Kahn tuvo tres familias con tres mujeres diferentes: su esposa Esther, su compañera de trabajo Anne Tyng, y con Harriet Pattison. Su hijo, con esta última, Nathaniel Kahn, retrató la vida del arquitecto en un documental titulado “Mi arquitecto: el viaje de un hijo“, que fue nominado al Oscar en 2003. En él participaron renombrados arquitectos como B.V. Doshi, Frank Gehry, Philip Johnson, I. M. Pei, y Robert Stern, pero también muestra sus complejas relaciones familiares, así como las inusuales circunstancias de su muerte.

Murió el 17 de marzo de 1974 de un ataque al corazón en los sanitarios de la estación de Pensilvania de Nueva York. Acababa de regresar de un viaje de trabajo en Bangladesh. Entre el 9 de julio y el 12 de octubre del 2014, tuvo lugar la exhibición “The Power of Architecture” sobre la obra de Louis Kahn, en el “Design Museum” de Londres-Inglaterra; la más interesante completa retrospectiva sobre el Arquitecto realizada hasta la fecha.

Texto de José Luis Colmenares, Miami Dade College, Architect.

 

 

 

2020_21_QD1 / E1_ Caso de Estudio 1/ MIND THE GAP _ Arquitectura y lugar_ Kisteglad_

RA3_2020_21_QD1_Caso de Estudio 1_En la desembocadura del mar. Kisteglad, una casa de verano en Hellersöya, arq. Wenche Selmer, 1965.

Sensibilidad tectónica, planta general, conjunto.

Escondido detrás del svaberg en el extremo de Hellersöya hay un pequeño grupo de casas. Envejecidas y grises como las rocas que las rodean, se erigen como un comité de bienvenida en el skjrergärd, una agradable señal de la presencia humana en el accidentado paisaje.

Cuando Selmer recibió este encargo, una pequeña cabaña roja se erigía en el lugar donde hoy se encuentra la casa principal; su frontón asimétrico se repite en la nueva casa más al este. Cuando la podredumbre y las hormigas carpinteras se convirtieron en un serio problema, la cabaña fue derribada, renovada y reubicada, proporcionando así un sitio vacío para construir. El cliente decidió construir varias casas bajas – una casa de verano, una sauna y una casa de invitados -creando un pequeño harbar en un lugar idílico. El lugar era extrañamente tranquilo, tanto que los pescadores de la zona solían anclar sus barcos allí durante la tormenta. Un muelle de piedra pavimentado entre las rocas crea un dique plano para los edificios, uniéndolos entre sí. Los muelles de madera conectados al muelle se han hecho a medida para ajustarse a los contornos del svaberg apoyados sobre vigas ocultas pareciendo flotar en el agua.

Las casas quedan protegidas entre las rocas. La teca del muelle en el puerto natural acaban fundidas en apariencia con los macizos que lo definen.

El programa de proyecto se resuelve en tres pequeñas casas, reduciendo así la dimensión visual de una masa construida total de 1.205 pies cuadrados. El diseño se ajusta a los pequeños e íntimos rasgos del paisaje, de modo que el lugar permanece dominado por la naturaleza. Se crean varios espacios exteriores aislados entre las casas y las rocas, enmarcando el paisaje de una manera única. Algunos de estos espacios son estrechos, con sólo el espacio suficiente para pasar y almacenar herramientas. Otros proporcionan espacios para sentarse. Entre las cabañas y las colinas hay ahora un gran patio pavimentado con losas de piedra, donde antes había una rocalla entapizante de aliso y un pozo, soleado y protegido del viento. Este espacio ofrece diversas posibilidades de interacción entre interior y exterior en una zona donde las rocas escarpadas y el mar limitan de otro modo la movilidad del usuario. Una abertura natural en la roca suficientemente amplia para un pequeño sendero conduce al arenal de la bahía al otro lado del promontorio y dentro de la isla.

La casa principal tiene una cocina y una sala de estar en planta, así como un pequeño vestíbulo de entrada con una caja de escalera que conduce al dormitorio de la planta superior. Desde el vestíbulo de entrada se accede también a otra habitación en planta baja, de modo que el vestíbulo crea una separación bienvenida entre los dormitorios y la sala de estar. La casa exterior albergaba en origen una cisterna, un almacén, una sauna y un aseo, mientras que la casa de invitados proporcionaba dos dormitorios para los visitantes. Casi todas las habitaciones, bastante pequeñas, tienen ventanas que dejan entrar luz en varias direcciones.

Interiores. La misma solución constructiva sirve de acabado.

 

Al entrar en la casa principal, uno percibe primero la sala cuyo pavimento de losas de pizarra recuerda al muelle exterior de piedra. Las escaleras que llevan al dormitorio en el ático están abiertas, y una ventana proporciona una vista de la colina. La sala de estar y la cocina tienen 23,3 pies de largo por 14,1 pies de ancho, con luz entrando por tres lados. La habitación alta con cerchas de madera vistas en el techo tiene también una gran chimenea y un hogar de leña. Debido a que la casa está situada cerca de la orilla del mar y con habitaciones relativamente pequeñas, casi parece haber sido encajada en la angosta parcela. El hecho de que la habitación principal se amplíe verticalmente da como resultado una armonía espacial; resultando compleja y atractiva como una pequeña catedral.

La cocina original fue diseñada a medida y construida en teca. Era compacta y muy pequeña, con encimeras estrechas. El actual propietario, que se hizo cargo del lugar en 1976, necesitaba una cocina más grande con lavavajillas y más estanterías y por tanto la amplió hacia el antiguo cuarto de lavado/ tendedero detrás del hogar. Las ventanas junto a la encimera de la cocina y la mesa del comedor proporcionan una vista del mar. Dos puertas batientes de cristal de dos alas en el testero y el lado más largo de la casa abren aún más la habitación al muelle.

Las habitaciones de invitados son pequeñas y tienen su propio acceso al muelle. Todas las puertas del lado del mar están cubiertas por el techo, protegiéndolas a ellas y a cualquiera que entre o salga de la casa contra la lluvia y la humedad del mar. Este porche se convierte así en una zona de transición, ofreciendo protección tanto física como emocional, importante en una casa que se encuentra tan cerca de la orilla.

La electricidad y el agua se instalaron más tarde, suministradas desde Lillesand y colocadas en zanjas, fuera de la vista. En los años 1990, se encargaron a Selmer los últimos cambios en las kabins. En el excusado, la cisterna se convirtió en una ampliación del almacén y del taller (utilizado para cocinar cangrejos, entre otras cosas), y se instaló una oficina de verano en lo que solía ser la sauna. También se instaló un nuevo baño con inodoro y ducha. Hoy el grupo de edificios es una residencia de verano práctica y bella, con capacidad para siete personas.

La calidad arquitectónica de las kabins se ejemplifica en los hastiales, que, con su revestimiento horizontal en el lado oeste y la falta de ventanas, transmiten una sensación de tranquilidad y de tensión. El muro de piedra de la cisterna original une la casa con sus alrededores, y la horizontalidad de los hastiales y la disposición de los edificios a lo largo del muelle forman un fuerte vínculo con el plano horizontal del agua. Nuevas constelaciones espaciales se crean constantemente entre las tres unidades separadas. El juego mutuo de luces y sombras entre las proyecciones de la cubierta, los pilares y las paredes cambian y dan profundidad a la escena. La transición entre interior y exterior, entre las casas y el muelle, se aprecia mediante el revestimiento que termina muy por encima del suelo de piedra y gracias a las grandes rocas que se encuentran delante de las puertas, acentuando la conexión con el lugar. El tosco revestimiento de madera, impregnado a presión, que ha permanecido sin tratar durante treinta y cinco años, expresa aún más el profundo parentesco con el paisaje circundante, con su brillante color gris plateado y su aspecto cálido y robusto.

texto original de Elisabeth Tostrup, 2006: Norwegian Wood. The thoughtful Architecture of Wenche Selmer. Princeton Architectural Press, págs 78-89. New York.Traducción libre de Antonio Millán-Gómez.

El aparente desorden percibido desde los flancos, se nos muestra como una disciplinada alineación desde la roca. Algo parecido sucede con las aberturas, resultado directo de las condiciones del medio.

TASK1_ El ejercicio que se propone es la explicación en varios DIN A-3 de esta casa, comunicando su contenido con claridad, en una labor de síntesis, en sesiones de clase y privadas para su comprensión, exposición ordenada y explicación final.

Conviene analizar primero el carácter de esta arquitectura, elaborar una estrategia expositiva e ir descubriendo mediante croquis intencionados los entresijos de esta obra.

  1. Algunos arquitectos/ diseñadores (como Diener& Diener, Herzog& De Meuron, o Palazuelo desde sus primeros años parisinos) han indagado sobre conjuntos de formas con fuerte contenido global. Se trata de constelaciones formales, más que de formas.
  2. Las edificaciones del caso que nos ocupa definen un lugar, y una vez implantadas, difícilmente podemos imaginar este paraje sin ellas. Nótese que los materiales pueden desmantelarse y retornar el terreno a su estado primitivo. En su modestia es una gran obra, con fuerte sentido del lugar. Y ese ha de ser el punto inicial de su ejercicio: cómo explicar el lugar, todo él y dentro de él el conjunto de las construcciones.
  3. Es un ejercicio de criterio expositivo, como si fuera uno de vuestros proyectos, a explicar posteriormente en Taller. Qué debe explicarse bien, qué puede omitirse, cómo situar la secuencia de plantas, alzados, secciones, croquis.
  4. La técnica es libre: puede realizarse la representación con cualquier software de dibujo asistido por ordenador, y también puede dibujarse a mano. Lo más relevante, a fin de cuentas, es la claridad comunicativa.
  5. Habrán de incorporar algunos alzados y secciones. ¿cuáles son necesarios y cuáles prescindibles? ¿Cómo disponerlos para una lectura adecuada? ¿Cómo llegar al compromiso de situarlos bien en el papel y que quien oriente la presentación pueda leerlos sin problemas? ¿Cuál ha de ser la escala?
  6. Puede apreciarse que la iniciativa es del estudiante, y que los resultados válidos son varios. Algunos planteamientos pueden llevar a errores irremediables.

Cualquier arquitecto vocacional vibrará sin duda ante múltiples descubrimientos; aquí las apariencias no son buenas consejeras.

 

 

2019-20_QD2/ E6_Caso de Estudio 6a/ Concursos_Museu Soulages, Rodez_RCR Arquitectes, 2008.

2019-20_QD2/ E6_Caso de Estudio 6a_ Concursos_Imagen Pública de la Arquitectura_Museu Soulages, Rodez_RCR Arquitectes.

Los concursos son un método objetivo para los usuarios, con dimensión disciplinar y ratificación de nuevos valores, a lo largo de la Historia. Así la construcción de la cúpula para el Duomo de Santa Maria di Fiore en Florencia -donde F. Brunelleschi traslada lecciones de la arquitectura romana a un lenguaje nuevo, renacentista-, o la ampliación del Cementerio Sur de Estocolmo, donde el tratamiento del paisaje coexiste con un nuevo modo de configurar el lugar por parte de E.G. Asplund y S.Lewerentz; o el polémico concurso para el parque de La Villette, donde un grupo de arquitectos muestran nuevas operaciones en la arquitectura postmoderna: Bernard Tschumi expone una serie de capas de naturaleza diversa (follies, caminos, áreas), en que coexiste una dinámica abierta de uso, junto a la abstracta propuesta de OMA que sentará nuevas maneras de tratar el lugar y el urbanismo. Y así podríamos seguir con una multitud de casos: el aeropuerto de Kansai, la reconstrucción de Berlín, la Sala de Conciertos Walt Disney.

Son episodios estudiados con hondura por Hélène Lipstadt, Elizabeth Tostrup, Birgit Cold, donde se producen tres procesos: la representación visual o gráfica, la explicación mediante unos textos para explicar la viabilidad de la propuesta, convenciendo, y un campo de materiales comparativos que hacen de las propuestas ganadoras documentos paradigmáticos o representativos de la dimensión pública de la arquitectura, estableciendo nuevos valores profesionales y abriendo el campo a desarrollos posteriores.

Nos ocupa un concurso realizado en la ciudad de Rodez para un museo monográfico, dedicado al pintor, grabador y escultor abstracto Pierre Soulages, a la sazón el pintor más importante en Francia. Los concursantes finalistas y seleccionados, Kengo Kuma, Marc Barani, Paul Andreu, y RCR Arquitectes (Rafael Aranda, Carme Pigem y Ramón Vilalta), que ganaron el concurso, hubieron de plantearse cuál era la esencia de la situación.

El edificio propuesto por RCR Arquitectes intenta establecer una sintonía con la obra del artista (A. Ruiz Alfageme); el tema, sencillo en apariencia, de unas geometrías paralelas, revela su complejidad al aportar unos volúmenes de diferente tamaño que despliegan formas elementales que en perspectiva son una cascada de cuerpos con la catedral al fondo; el acero y la piedra combinan con el negro y los colores terrosos de las pinturas de colores similares de Pierre Soulages (W. Curtis).


Si observamos en detalle algunos matices de los esbozos iniciales para la propuesta, podemos leer con claridad “talus abrupt existant= barrière” (talud abrupto existente= barrera). Conocían situaciones similares afrontadas en sus obras: Centro Cívico de Riudaura (1994-99), IES Vilartagues (1995-99), Facultad de Ciencias Jurídicas (1995-99), Casa Horizonte (2000-07), donde la obra arquitectónica responde a los retos del lugar y se fusiona con él.

En Rodez la propuesta era un elemento mediador entre la colección Soulages y la ciudad -que proporcionaba magníficos espacios a tratar, el museo se halla en un parque en forma de almendra, cerca de la parte vieja y la catedral, flanquea la avenida de mas tráfico de la ciudad, alejándose de la Avda. Victor Hugo, más peatonal y de cota más alta. Domina la ciudad, mientras el paisaje y las montañas de Aveyron marcan el emplazamiento, que actúa como parque público y mirador en diversas direcciones, constatando la presencia urbana. Pero la lectura del lugar debe aparecer clara al Jurado, y, en consecuencia, se aclaran (se disminuye el contraste) de las zonas que nada dicen sobre la operación realizada, y las que pueden explicar la idea de proyecto -por “contraste”- quedan realzadas.

En obras anteriores ya se habían planteado la relación entre interior y exterior, y la coherencia inapelable del estadillo de las fenestraciones -que suele pasar desapercibido- nos instruye sobre la concreción en la arquitectura de RCR. Aquí la necesidad de ajustarse al lugar impone una disminución de alturas, en sintonía con las percepciones que constatan ya desde sus maquetas. Y el programa reclamará un elenco diverso de iluminaciones (cenitales y horizontales), que aparecerá al leer las plantas.

La secuencia de volúmenes queda establecida con nitidez, así como la dualidad Norte Sur (lectura desde el nivel inferior al parque o lectura desde el parque), así como la relación transversal -que nos muestra la escalera entre ambos niveles. Esto se posibilita mediante el sistema constructivo y, una vez caracterizado el exterior, llega la hora de volcarse al interior y a las relaciones con la obra expuesta.

Ya desde IES Vilartagues el ritmo de una secuencia de jácenas -estrechas y de gran canto- dejaban ver cómo la repetición múltiple de un elemento constructivo acababa haciéndolo desaparecer (lección que Fehn había dejado en Venezia). Aquí la diversidad del programa puede ajustarse a unas jácenas separadas 1,80 m, dotando de flexibilidad expositiva y dando unos acabados que dialoguen bien con las obras. La. cualidad de la luz, clara u oscura, se ponen así en diálogo con la obra.

El programa incluye varios espacios expositivos para mostrar la variedad de formatos y técnicas de Soulages  en 1500 m2 y una sala de exposiciones temporales de unos 500 m2. El vestíbulo ocupa unos 300 m2. Oficinas con el centro de documentación y talleres pedagógicos de unos 400 m2. Café y restaurant con entrada independiente de unos 650 m2. Y 650 m2 para fondos y espacios de restauración de obras. La lectura puede hacerse con claridad, separando por paquetes las diversas actividades.

La iluminación merece atención esmerada en un museo. Podemos apreciar que entre los volúmenes que parecen colgar sobre el talud hay amplias superficies acristalaras, estableciendo un contrapunto que recuerda los tonos del pintor. Y, a su vez, se diferencian de las iluminaciones cenitales, como se puede apreciar en los detalles adjuntos.

Las diferencias entre alzado norte y sur conducen a las secciones para comprobar cómo se articulan ambos sectores con el espacio del museo. 

Llegados aquí, el ejercicio propuesto es comparar en tres partes el desarrollo de proyecto:

  1. análisis del lugar, su coexistencia con el espacio público y los parques urbanos,
  2. imagen exterior, volumetría del edificio y relación con la topografía. Tratamiento del programa por bloques.
  3. Espacios interiores, recorridos, secuencia de visitas y sesiones de estudio.

Puede apreciarse, en el detalle de las secciones, cómo RCR establece una narrativa de los pabellones del Museo Soulages, incluso la relación existente  entre la solución constructiva de los lucernarios y el carácter de las salas de exposición. En realidad es tan sencillo como abrir los ojos a la descripción que se prevé para el edificio y la interacción con sus usuarios (Fuente AV).

Sección longitudinal, paralela al eje del parque, perpendicular al acceso.
Sección transversal, paralela al eje de acceso publico, donde se detalla la iluminación cenital y su relación con el carácter de las salas.

2019-20_QD2/ E5_Caso de Estudio 5/ Código genético del lugar_ Colletta di Castelbianco_ arq G. De Carlo.

5_2020_QD2_Caso de Estudio 5_ Código genético del lugar_ Colletta di Castelbianco_ arq G. De Carlo.

El autor de esta obra explicó la experiencia de su proceso en 2004, en un sucinto artículo bajo el título Colletta di Castelbianco (Speaking of Places), que adjuntamos en traducción libre bajo estas líneas:

https://escholarship.org/uc/item/3mg998m2

http://eScholarship · UC Berkeley · College of Environmental Design · Places · Volume 16, Issue 2

Igualmente informada en The Architectural Review 1180, junio de 1995, páginas 83-88, y divulgada por Juan Ignacio Azpiazu, www.ignacioazpiazu.com en  Mar 16, 2017 .

Vista general desde NO.

Colletta di Castelbianco, arq. Giancarlo De Carlo 

En este proyecto nos propusimos rediseñar y dar vida a un viejo pueblo abandonado hace doscientos años.

El pueblo de Colletta, en la comuna de Castelbianco, se extiende unos 300 metros a lo largo de la cima de una colina justo en la base de los Montes Apeninos, a unos 75 km. al oeste de Génova. Se encuentra a lo largo de una antigua carretera que sale de Albenga en la costa, sigue el valle de Pennavaira hacia el interior y luego cruza las montañas hasta Ormea en el Piamonte. El pueblo nació, creo, porque los campesinos de los alrededores tenían intercambios comerciales con los viajeros que cruzaban entre Liguria y Piamonte. Pero cuando se construyó un nuevo sistema de carreteras hace doscientos años, evitándolo, los habitantes aparentemente decidieron abandonar el pueblo y trasladarse a otro lugar.

Un pequeño promotor de Alessandria tuvo la idea de que sería posible rehabilitar este pueblo, y por lo tanto comenzó a comprar partes de él. En su mente, el pueblo tenía poco potencial como lugar de vacaciones ordinarias, porque está a veinte kilómetros del mar. La naturaleza circundante también era muy dura, y pensó que quizás a los turistas no les gustaría eso. Pero este era un lugar de soledad, así que se inventó la idea de que la gente a la que llamaba “águilas blancas” iría allí.

Las águilas blancas son personas que trabajan solas y buscan el aislamiento, pero que también usan computadoras y electrónica de información para mantenerse en contacto con lo que está pasando. No sólo están en contacto, sino que pueden dirigir operaciones en otros lugares más concurridos. Estas personas normalmente pueden pasar largos períodos de aislamiento, y pueden querer vivir en lugares completamente tranquilos. Las “águilas blancas” no eran muy numerosas en Italia en el momento en que este proyecto comenzó. Pero había algunas, y también hay otras personas que están completamente cansadas de los pueblos, y que quieren ir a lugares muy simples donde pueden vivir una vida en conexión con la naturaleza y al mismo tiempo estar en contacto con lo que está sucediendo alrededor de Italia.

La idea era fantástica. También fue inmediatamente atractiva para los medios de comunicación, porque los medios de comunicación tienen curiosidad por la gente extraña, como las águilas blancas. Financieramente, la fórmula también funcionó. Esto no significaba que el lugar pudiera ser vendido inmediatamente. Al contrario, el proceso fue muy lento. Pero sus perspectivas eran lo suficientemente prometedoras para que el promotor invirtiera el poco dinero que tenía para comenzar la rehabilitación.

Leer el tejido urbano

Espacios construidos y espacios públicos/ abiertos: recíprocos y con estricta similitud de forma y dimensión.

Cuando empecé a estudiar este lugar, por supuesto, no estaba completamente seguro, porque estaba aislado, y porque soy un urbanita y no entiendo inmediatamente los lugares que no tienen vida dentro de ellos. Pero lo que me interesaba era el tejido. Es algo que está absolutamente entretejido, y tenía una serie de cualidades que busco en otras situaciones. Una de las situaciones notables que encontré aquí es que los espacios abiertos son del mismo tamaño y calidad que los espacios construidos. No hay discontinuidad. Te mueves del espacio construido al espacio abierto, y es lo mismo. La diferencia, por supuesto, es que es abierto, pero el tamaño, la forma en que hace un recinto a tu alrededor, es exactamente el mismo – tienes exactamente la misma sensación. Apenas puedes separar lo que se da al movimiento y lo que se da a la inmovilidad – las calles y los espacios construidos son de nuevo lo mismo; se introducen entre sí y producen situaciones que son increíblemente intensas.

También me pareció muy interesante que hubiera una coherencia entre la tecnología utilizada para construir este pueblo y el sistema de sus formas. El material utilizado fue la piedra, que se encuentra en los campos. Para cultivar olivos, los aldeanos tenían que nivelar la tierra, y tenían que apilar las piedras para dejar la tierra libre. Pero en este caso la misma piedra que se usó para hacer los muros de las terrazas de olivos también se usó para hacer sus casas. La piedra no es particularmente fuerte, y los pedazos son pequeños. Pero ensamblaron y entrelazaron todas esas piezas de tal manera que se convirtieron en bóvedas.

Sección genérica (compárese con diagrama de Van Eyck), positivo y negativo/ espacio y construcción.

La técnica no era sofisticada, pero afectaba mucho al tamaño del espacio. No se pueden encontrar espacios de más de cuatro metros de ancho. Son cuadrados o rectangulares, pero el espacio entre las paredes está determinado por la bóveda.

Así que todos los espacios están abovedados, y se entran unos a otros. Y encima de la bóveda, el techo es plano porque los aldeanos necesitaban un lugar al aire libre donde pudieran secar los materiales que obtenían de la tierra, los materiales agrícolas. Si hacían vino, podían poner las uvas allí; y lo mismo con las aceitunas, y todo lo demás. En la planta baja, que era quizás la zona más húmeda (y la más difícil de rehabilitar, por supuesto) tenían animales sencillos, asnos.

Crustáceos

Comencé mi investigación haciendo dibujos para entender la textura del lugar. Al principio dudé mucho porque mi generación, y también la anterior y la posterior, se formaron en la idea de que un edificio puede ser flexible y adaptable si es vertebrado. Esto significa que tiene huesos y luego músculos y luego piel – pero los tres están separados de tal manera que todo es adaptable.

Pero cuando conocí este pueblo comprendí que la forma de crustáceo es tan flexible como el vertebrado. Y traté de ver esa idea del crustáceo de una manera completamente diferente. Es decir, el crustáceo parece muy fuerte y compacto, como una unidad en sí mismo, pero esto no es cierto. Tiene un número increíble de articulaciones y la posibilidad de moverse y ser flexible. Los crustáceos son muy capaces de adaptarse al entorno. Esto es lo que descubrí. Y tan pronto como la metáfora vino a mi mente, mi actitud hacia el pueblo cambió completamente. ¡Es extraño lo que le puede pasar a un arquitecto! A veces necesitas una metáfora para glorificar tus ideas. Y luego sigues el asunto por – no para siempre, te recomiendo – sólo por un momento. Quizás recuerde un famoso artículo de Le Corbusier. Era un gran arquitecto, pero también cometió algunos errores. Y uno de ellos fue creer que el crustáceo estaba desfasado – un poco estúpido, pesado, etc. – mientras que el vertebrado era flexible, delgado, elegante, inteligente y agradable. Esto no es cierto en realidad, porque depende de cómo te relacionas con el medio ambiente, con las condiciones generales. No hay posibilidad de establecer una regla de una vez para siempre. En la arquitectura se encuentran tantas condiciones diferentes que se necesita una mente adaptable.

Sí, el vertebrado tiene esa flexibilidad, pero también es muy dogmático. Tiene muchas posibilidades, pero no una adaptabilidad tan completa como la del crustáceo.

Cuando la idea de la vertebración se ha seguido dogmáticamente – tomando  la casa Dominó de Le Corbusier y haciendo un modelo de ella (o, mejor, un tipo) – se ha repetido y repetido de una manera tediosa sin entenderla. Nuestras costas en Europa fueron destruidas porque ese elemento inflexible fue puesto en todas partes.

Por supuesto, algunas zonas escaparon porque este sistema de construcción no tenía la capacidad de entender el lugar y adaptarse a él – mientras que el crustáceo tiene esa capacidad. Y esto es lo que aprendí en Colletta. Repasando esta idea, encontré cuán hermosas eran, por ejemplo, las conexiones, cuán completa era la intersección, la capacidad de entrelazarse. Lo ves inmediatamente en las escaleras, que están llenas de imaginación porque tienen que hacer cosas impredecibles para llegar a un punto desde el otro. Y muchas veces en el crustáceo que esas cosas tienen que ser reinventadas; no se establecen de una vez para siempre. Así que en este pueblo se encuentran conexiones que se inventan continuamente. Esta era la sabiduría del pueblo, no tenían arquitectos, por supuesto.

El código del lugar

 Lo que empecé a buscar fue el código genético. Me quedó claro que había un código, y que tenía que descubrirlo para cambiar el lugar. Cualquier cosa que hubiera podido hacer con este código genético hubiera sido un error.

Para entrar en la naturaleza de este lugar empecé a mirarlo por secciones. Esto te permite ver cómo se juntan los espacios. Y si los haces negativos, otras cosas se vuelven inmediatamente importantes. Es una forma de dar vuelta el problema por todos lados y tratar de entender sus reglas internas. En Colletta encontré que las conexiones penetraban en los volúmenes. O, se podría decir, los volúmenes penetraron las conexiones. Es exactamente lo mismo.

Y cuando empecé a diseñar apartamentos de esta congregación de espacios, descubrí que las conexiones eran posibles en todas las direcciones. Descubrí que podía conectar todo si abandonaba algunos de los dogmas normalmente relacionados con la composición de un plan. Descubrí que era posible entrar en un espacio desde muchas direcciones diferentes, y también darle usos diferentes, pero intercambiables. ¿Por qué el baño tiene que ser pequeño y la sala de estar grande? ¿Quién decidió eso? En este contexto, en realidad no importaba.

Dependía de los niveles de razonamiento y uso. Así que era posible cortar y aislar espacios y servirlos de tal manera que pudieran convertirse en apartamentos para esas personas, las águilas blancas.

Secciones BB, CCC, DD/ y EE, FF, GG. Las primeras correspondientes al Sector occidental del poblado, las últimas correspondientes al Sector Oriental. En cada caso se incluye la situación inicial y la rehabilitada.

Lo que era más sorprendente era la forma en que la sección podía ser utilizada. Porque en este caso no era sólo una cuestión de ir horizontalmente para conectar el espacio existente. En este caso el baile se volvió muy emocionante porque también era posible ir verticalmente, o ir horizontalmente y luego verticalmente. O ir de forma oblicua y conectar las cosas de tal manera que las casas pudieran ser servidas desde la planta baja, o la parte superior, o el medio. Así que era posible tener una composición completamente flexible y absolutamente nueva para mí.

Cuando los apartamentos comenzaron a tomar forma, eran de diferentes tamaños. Pero tan pronto como llegaban los primeros compradores posibles, comenzaba la acción de ajuste. Era muy fácil ajustar los espacios si esperaban una forma de vida particular.

En algunos casos había volúmenes construidos en la parte superior que habían sido destruidos por el tiempo y el clima, y los reconstruimos siguiendo el mismo patrón. Pero en otras áreas se nos pidió que añadiéramos parapetos. Originalmente, no había parapetos o pasamanos. Y los documentos históricos no decían que la gente moría cayendo. Sin embargo, las organizaciones de construcción imaginaron que todo el mundo se mataría de esta manera. Sostenían especialmente que los niños se caerían por las escaleras.

No era mi deseo hacer parapetos. Pero lo hice, y se convirtió en un problema. Ya que todo se hizo con una habilidad inconsciente, tan pronto como añades algo, encuentras un problema. Así que tuve que hacer muchos intentos para que funcionara. Pero a veces, como en la cura homeopática, al tocar un punto pobre, también podías tocar otro punto que estableciera el equilibrio. Tal vez lo que estaba haciendo ya no era un parapeto, sino una escalera, o un pedazo de la calle – porque esta es la forma en que hay que proceder para establecer los equilibrios.

Ventanas

También se hicieron estudios en busca de códigos genéticos en los diversos componentes de los edificios. Una cosa que fue impactante y muy interesante fue que todas las ventanas de todas las casas estaban enmarcadas con yeso y pintura blanca. Por supuesto, había una razón funcional para ello. Si tienes que poner una ventana de madera en una pared tienes que tener una superficie regular. Así que usaron algo de yeso allí.

Pero esta no era ciertamente la única razón. Una ventana es también un punto muy delicado en una casa. Es un lugar donde tienes una transición del espacio interno al externo. Es un punto dramático, algo que te da placer, y también miedo, dependiendo de las circunstancias. Así que hay que subrayar su importancia. No tenían superficies de piedra lisa para enmarcar las aberturas. Sólo tenían la posibilidad de pintar el yeso. Pero la pintura no era sólo por razones funcionales, sino que se hacía por razones de expresión, de auto-representación.

Por ejemplo, un hombre puede haber sido quizás más rico, más rico en términos del nivel general de pobreza en el que todos vivían. O tal vez tenía más imaginación, o quería decir que era más sensible. En cualquier caso, quería declarar su individualidad e identidad. Así que pintó su ventana de una manera muy especial para que se pudiera reconocer inmediatamente en el panorama general del pueblo.

Esto es algo que hay que tener en cuenta en la reconstrucción. Porque si lo cambias, o si lo repites, la redundancia no se acepta como simplificación. Así que tienes que encontrar el punto correcto, y de nuevo está relacionado con los códigos genéticos.

Entonces, en muchos casos me vi en la necesidad de añadir algunas ventanas, porque internamente no había suficiente luz para la vida actual. La gente está acostumbrada a tener más luz natural que en el pasado. Entonces, ¿cómo abrir ahora una nueva abertura en esas paredes? Era necesario entender exactamente qué eran las ventanas. ¿Cuál era su diseño? ¿Cuáles eran las relaciones entre las ventanas? ¿La cadencia, el ritmo, el tamaño de las aberturas?

Cuando empezamos a estudiar la altura y el ancho de las aberturas, descubrimos que todas las ventanas podían ser relacionadas de acuerdo a un diagrama que determinaba no que tuvieran las mismas dimensiones, sino que tuvieran proporciones muy similares. Hay que mantenerse dentro de ese diagrama si se quiere hacer algo que no rompa el sistema. O, si querías hacer una ruptura – y esto podría suceder si hubiera necesidad de mostrar un cambio en la organización – tenías que calcular tu ruptura muy cuidadosamente. No puede ser una ruptura hecha por casualidad – o por distracción, que es peor. Tenía que ser algo que estuviera realmente de acuerdo con el sistema, los sólidos y vacíos que caracterizan a la aldea.

Cuando se hizo otro ejercicio para entender cómo se hicieron los muros, hubo otro descubrimiento. Fue que hay correspondencias. En este caso, si se rastrean las correspondencias, una sobre otra, etc. etc., siempre se tiene algo que es lo suficientemente preciso para dar instrucciones sobre qué hacer. Puedes proyectar los espacios internos en la pared para entender cómo se podrían poner los agujeros, no sólo en relación con el espacio interno, sino también en relación con la fachada y con los otros huecos.

Gran parte del pueblo ha sido renovado y habitado, y el trabajo sigue en marcha. Por supuesto, lo que se añadió que era completamente nuevo fue la mecánica, porque necesitan calefacción y luz eléctrica – y también, especialmente, los cables y enchufes de la tecnología de la información que no afectan tanto a la arquitectura, ya que pueden ser enterrados detrás de yeso y otros acabados.

Se va muy despacio porque no se puede ir muy rápido en este caso. Tienes que trabajar en cada pieza y juntar las cosas y parar y entender y empezar de nuevo, etc. Lleva mucho tiempo hacer el diseño de un lugar tan humilde.

*******

EJERCICIO PLANTEADO

Debemos explicar cómo funcionaría la propuesta de recuperación de este poblado, en un desarrollo progresivo, en tres Fases,  – desde encajes parciales, hasta la representación global de la planta.

Fase I. Establecemos en inicio un equipo de tres o más personas, con el deseo de superar en lo posible el confinamiento vinculado a la pandemia del COVID 19 (puede atisbarse una secuencia de trabajo: división de tareas, encaje de partes desarrolladas, y explicación gráfica final, con el toque personal de cada uno).

Fase II. Desde fuentes claras, estudiamos la planta de pre-existencias (cubiertas y planta general), la propuesta de De Carlo, y las secciones transversales.  Redibujar la cubierta es una oportunidad para captar un orden tangible, y los intercambios lógicos que aparecieron en sucesivas generaciones. Más adelante explicaremos la morfología en detalle.

Fase III y Final. Integración de los materiales elaborados en una presentación persuasiva que permita entender el aspecto general y las acciones a desarrollar.

Es aconsejable comunicar con cada profesor al final de cada fase mediante el trabajo desarrollado.

*******

En la situación en que nos hallamos, es inevitable pensar en la dinámica de las ciudades, inmensos atractores de ciudadanía, que -en el proceso- contribuyen a despoblar y desubicar  un  número de asentamientos seculares, si la gestión del medio no es equilibrada. La reflexión que se plantea es ¿cómo utilizar toda esa energía depositada durante siglos, mediante una intervención actual, que les infunda vida?

Colletta di Castelbianco es un antiguo pueblo en los Alpes Marítimos y cerca de la Riviera Italiana en la provincia de Savona en Liguria, Italia. El pueblo, construido en  piedra, fue probablemente establecido comodefensa contra los sarracenos en el siglo XIII. Abandonada en los años 50, Colletta fué restaurada finales de los 90, con  un proyecto  que funciona en dos niveles.

– Por un lado, se ha recuperado el antiguo asentamiento, respetando los materiales y las técnicas de construcción originales;

-por otro lado, se dotó al pueblo de una sofisticada infraestructura telemática  (concebido por Valerio Saggini y planificado en común con Stefania Belloni) que permitió a los nuevos habitantes beneficiarse de una amplia gama de recursos telemáticos.

Así los pobladores pueden disfrutar de la paz y el aislamiento físico de la aldea, siguiendo en contacto con el entorno laboral y con los recursos de información disponibles en todo el mundo. Las personas de Colletta pueden teletrabajar o pasar allí largos períodos; coincidentes o no con los días festivos oficiales, o trasladar su residencia principal a Colletta.

Por situación y mediante la tupida red de caminos existente, están diversificando sus recursos. En 2005, el pueblo tuvo una cosecha de aceitunas, primera en 30 años, produciendo aceite de oliva de alta calidad a partir de las aceitunas locales de Taggiasca.

*******

Los ejes de trabajo al analizar la propuesta de De Carlo para Colletta di Castelbianco operan, siguiendo un método testado por él mismo durante lustros, desde:

  • La lectura o interpretación del lugar: cuáles son sus rasgos morfológicos, compatibles con códigos de actividad implícitos en su formación, y que condicionan las propuestas futuras. Una operación de este tipo es paso obligado antes de proyectar propuestas que pudieran no encajar con las condiciones del lugar. Al considerar la topografía, no sólo se observa ésta, también  el carácter que propicia. Ello es evidente en esta intervención, en los colegios de Urbino, y puede percibirse en los diagramas de Aldo Van Eyck, donde actividades centrípetas o centrífugas son resultado natural de los soportes sobre los que operan.
Aldo Van Eyck_Diagramas.

 

  • Entrever después los sistemas edilicios compatibles con esa realidad existente, para exponerlos de manera persuasiva: evidenciar las pre-existencias permite operar en complicidad con los agentes sociales. La reflexión en este caso fue, paradójicamente, que los espacios exteriores e interiores establecían operaciones de ocupación similares, y cuanto sucedía en planta podía articularse igualmente en sección. El respeto por la construcción ya existente imponía una búsqueda de sus cualidades, llegando incluso a una manera de analizar la localización de las aberturas que no generase una imagen ajena, superpuesta a cuanto Colletta había sido y es, incluso con actividades propias de nuestro siglo, algo similar a esta situación de teletrabajo en la que ahora estamos inmersos.

 

  • Conciencia de la globalidad: el poblado en ruinas es tratado respetando la idea de conjunto, sus centros, y el modo en que va desparramándose por las laderas. La realización de siete secciones transversales compara el antes y después de la intervención, pudiendo apreciar la pervivencia de su carácter. Se han encajado desde fuentes diversas la planta y las secciones, de modo que se desate la inquietud por ver no sólo las partes del poblado, sino cómo encajan, configurando una totalidad. Esas secciones son nuestro aliado inicial para dominar la espacialidad del conjunto. Nótese que nunca se realizó una sección longitudinal, y recuerdo las palabras del propio De Carlo “o bien operamos respetando la cota o yendo contra cota”. Si estamos definiendo secuencias transversales, nos hallamos en la situación segunda, y la primera se deriva de la superposición de todas secciones.
Propuesta de De Carlo. Estacionamiento y parking a la entrada del poblado que queda aislado del trafico. Compárese con la planta de AReview -de fondo azul- donde se señala el núcleo central, más integrado, diferenciado de los flancos.

El ejercicio que se plantea es explicar cómo opera este proyecto, con un desarrollo progresivo, por Fases,  -con la esperanza de que podamos distraernos también del confinamiento- desde algunos encajes parciales hasta la representación global de la planta.

Redibujar la cubierta es una magnífica oportunidad de captar un orden tangible, inicial, donde los intercambios lógicos que aparecieron en sucesivas generaciones se evidencian.

Por motivos obvios hemos de limitarnos a unas fuentes claras, incidiendo en la planta de pre-existencias (cubiertas), la propuesta de De Carlo, y las secciones transversales, para incorporar después información de cada sector (en internet la cantidad de fotos disponible puede desorientar; esa información se proporcionará ordenada, para facilitar el trabajo).

 

 

2019-20_QD2/ E4_Caso de Estudio 4/_ Un lugar diagramático_ Mazzorbo_ arq G. De Carlo.

2019-20_QD2/ E4_Urbanización en Mazzorbo, cerca de Venecia, 1979-85. _Arq De Carlo.

Colaboradores: Alberto Ceccheto, Connie Occhi laini, Daniele Pini, Renato Trotta

Situado en la laguna, a unos 10 km de Venecia, la isla de Mazzorbo y sus pocos habitantes está conectado por un puente peatonal con el barrio más conocido de Burano. La crisis de la vivienda en Burano obligó a Mazzorbo a pedir 80 casas a De Cario. “Es posible instalar, en cualquier lugar, 80 casas en un edificio sin que se note demasiado, dice el arquitecto, pero, en las islas de la laguna de Venecia, este número de 80 casas representa, o debería representar, 80 casas que, en conjunto, ocupan mucho espacio. Esto se debe a que las aguas y las partes emergidas de la laguna conforman un mundo en el que cada signo, por pequeño que sea, adquiere una importancia desmesurada. »

Los procesos preparatorios en Terni pasaron por encuentros con habitantes potenciales de un lugar que  parecía carecer de características singulares a primera vista. En este caso, se necesitaba captar todos los matices del lugar antes de proponer soluciones arquitectónicas  e imaginar la vida de los usuarios.

La detallada observación de la arquitectura de Burano por De Carlo se convirtió en la base de referencia para toda la comunidad, ya que readaptó la morfológica característica de la ciudad – su calle (artefactos peatonales), sus pequeños campi (patios) frente al mar y su fondamenta (camino a lo largo del canal) – y luego se dedicó a ordenar los espacios públicos, a rediseñar el canal, no dudando en elevar, a un gran costo, todo el sitio por un metro para que la ciudad pudiera coexistir con las mareas.

En primer lugar se elaboró una serie de “casas modelo” que dieron origen a 36 viviendas, cuyas formas contiguas respondían menos a las exigencias de los espacios internos (como en Terni) que a su disposición en un plano general (según terrazas o ángulos). Estas formas, aunque evitan la copia pitto resque, siguen un riguroso proceso de desarrollo. Los diversos elementos, articulados como en Terni, han permitido diseñar cajas de escaleras, cilindros, composiciones rítmicas y estratégicas, colores. Para los nuevos residentes, el resultado fue tan convincente como familiar. Pero el proyecto tuvo que ser reducido para acomodar el inevitable estadio de fútbol, y sólo se construyó el gimnasio.

La información de que se dispone permite realizar una explicación tridimensional de la planta 2d con la información contenida en los diversos tipos que aparecen en la matriz explicativa.

Queda a criterio de cada participant@ la utilización, o no, de tonos cromáticos. Y en cualquier caso es pertinente controlar la sensación de profundidad, de modo que se caracterice el lugar.

Link Divisare

En el link podéis hallar información adicional sobre la apariencia del asentamiento.

Dedicaremos dos semanas, en que nos podemos comunicar vía intranet. Con los mejores deseos.

2019-20-QD2/ E1-Complejidad y Escala_Arco de la Defense, arq Von Spreckelsen, 1985-89.

CASO DE ESTUDIO 1_ Arco de la Defense. Arq. Von Sprecklesen, 1985-89.

Durante siete siglos Paris estuvo confinada dentro de los límites fijados por sus príncipes y sus ediles. Dentro de los recintos murarios las puertas, las plazas y -con el imperio- la vanidad de los arcos triunfales eran hitos orientadores en la complejidad del tejido urbano. El Iluminismo aportó un ideario estructurador tras la revolución, dado que se necesitaba un nuevo orden. Los espacios públicos eran también el ámbito de manifestación del orgullo nacional. Con ellos y a medida que la Modernidad avanzaba fueron transformándose las funciones requeridas para una tipología edilicia que precisaba ser reinventada. En este caso, desde los objetos más comunes. La sencillez de un cenicero diseñado por Arne Jacobsen es ejemplo de cómo una forma elemental, cúbica presenta variadas complejidades. Debemos fijarnos primero en la situación concreta y analizar el fenómeno. El ejercicio que se propone es una serie de perspectivas, plantas, secciones, etc. dispuestas en un discurso gráfico, en formato DIN A-3.

Presentación y debate

El arquitecto Von Sprecklensen, diseñador cuidadoso y procedente de la tradición del diseño danés propuso un arco con una forma sencilla, reconocible en formas elementales, como es el cubo; pero con unos matices que vale la pena considerar: los chaflanes hacia el vacío interior, la semejanza de las envolventes geométricas (en escaleras y el volumen de cubrición, adintelado y en ménsula). Comparemos un objeto sencillo como el cenicero diseñado por Arne Jacobsen con el Arco de la Defense: En ambos casos, una geometría sencilla y funcional: media esfera hueca sobre un cilindro de proporciones asimilables a una envolvente cúbica; soporte y contenedor/ receptor y vaciado de ceniza, todo muy sencillo y plenamente funcional: ahí radica su belleza. En el Arco parece que nos hayamos trasladado a un cuento de los Viajes de Gulliver: un objeto sencillo, con una escala desmesurada, monumental; es la escala y su tratamiento urbano, estructural y simbólico lo que le otorga relevancia, junto a su complejidad ambiental.

1_a_sucesivas cintas murarias marcan el crecimiento de Paris, y en ellas algunos edificios y monumentos marcan hitos de orientación y control. b_un objeto sencillo como el cenicero de Jacobsen presenta complejidades insólitas._ c un cubo, transformado en arco de triunfo presenta dificultades insólitas cuando aumenta de tamaño.
Desorden urbano en la defense. Los croquis de Von Sprecklensen muestran una forma abstracta, todavía reminiscente de una representación axonometrica.

Lo que en otros años era un caos en la periferia, que se intentaba estructurar mediante ejes marcados, acabó nutriendo un eje integrador en torno al cual diversos edificios se agrupan en áreas que recuerdan el contorno de un violonchelo, allí la sencillez del Arco impone una autoridad orientadora, ya apuntada desde los primeros esbozos. Los matices son muy importantes en esa figura sencilla donde se sintetizan siglos de arquitectura. En primer lugar, debemos considerar la tipología de los arcos de triunfo

ARCOS, ARCADAS Y BALIZAS. Los Arcos como hitos que orientan el espacio urbano.

Símbolo de la autoridad imperial, el arco del triunfo se erigía a menudo en una de las salidas del Foro. Este monumento sólo perteneció a los romanos. Era una estructura arquitectónica compuesta por dos pilares unidos por una bóveda de medio punto; sostenía a través de ella un entablamento y un ático, la base rectangular de una cuadriga o estatua. El arco estaba decorado con columnas que se apoyaban en los pilares. La decoración de esta se distingue de la del Fornix[1], cuya forma primitiva aparece en el siglo II a.C. Los lugares elegidos para los arcos no eran fortuitos, sino elegidos por el papel que desempeñaban en la vida de la ciudad. El significado del arco de triunfo tiene sus raíces en la antigua religión romana de la guerra. Al final de las campañas militares, los guerreros marchaban bajo un dintel mágico. Liberaban así las energías dañinas que llevaban consigo. Era un ritual para dejar los clamores de los guerreros fuera de las ciudades.

Arco del Carrousel y del Primer Consul 1801

[1] (estructura de sustancia blanca también llamada trígono o “bóveda de 4 pilares” por poseer 2 proyecciones anteriores y 2 posteriores también llamados pilares o columnas).

El arco romano sintetizaba la armonía entre la providencia y el emperador cosmocrático. Entre los más notables: el Arco de Tito, único vestigio de los muchos arcos de los Flavios, el Arco de Septimo Severo en el Foro Romano, el Arco de l’Orange, el Arco de Constantino en Roma y el Arco de Caracalla en Volubilis.

En el arte cristiano, el arco de triunfo dio origen al arco de triunfo situado en la entrada del coro de las iglesias. Sin embargo, desde el Renacimiento y la relectura de las humanidades griegas y latinas, los arcos romanos se relacionan con la vida cívica de la ciudad. Son imitados a menudo, aunque su significado tenga poco que ver con el uso antiguo.  Así, bajo Luis XIV, la puerta de Saint-Denis de Blondel (1672) y la puerta de Saint-Martín de Bullet (1674), marcan la gloria de un príncipe que doblegó a los duques y a Europa. Bajo el Primer Imperio, el arco del Carrusel de Percier y Fontaine exalta, en 1808, la invencibilidad de Napoleón Bonaparte. El Arco del Triunfo de Chalgrin, en l’Etoile, consagrará la ira liberadora del Gran Ejército con una transposición colosal del Arco de Constantino.

LOS PROPILEOS DE LEDOUX O LA CONCESIÓN DE LA UTOPÍA. DEL TRINFO ROMANO A LAS CONSTRUCCIONES DE C. N. LEDOUX.

Barrières de Sant-Denis (en 1820), démolition de la B. de l’Etoile, 1860, Barriere de la Villette, 1820.

Como todos los edificios romanos, los arcos de triunfo tenían “escala”. Esto significó que los arquitectos, los constructores, tuvieron en cuenta el tamaño del hombre en la composición. Este elemento humano creó un punto de referencia que permitió evaluar ópticamente las dimensiones de un edificio. Los griegos ignoraban la escala. Adoraban sólo la armonía, dejando la escala ya implícita.

Claude Nicolas Ledoux, el ágil utópico como Fígaro y soñador como Jean-Jacques Rousseau, veneraba tanto la armonía como la escala. El protegido de Charles Alexandre de Calonne y Federico II de Prusia era una especie de Vauban de la filosofía de la Ilustración. El favorito de los du Barry dibujó bastiones de racionalidad destinados a albergar a los nuevos constructores… Al esbozar las Salinas de Arc-et-Senans, había enunciado el postulado de estas nuevas relaciones entre los capataces y los obreros: El ojo observa fácilmente la línea más corta; la obra la recorre con un paso rápido; la carga del viaje se aligera con la esperanza de un rápido retorno. Todo obedece a esta combinación que perfecciona la ley del movimiento“.

Pese a las prohibiciones reales, París creció más allá de las fortificaciones. En 1770, el Barrio de Saint-Germain llegó a la Escuela Militar y al Campo de Marte. En vísperas de la Revolución, se decidió dejar constancia del hecho consumado mediante un simple muro de concesión que se detenía en las entradas de la ciudad para permitir la recaudación del impuesto. El muro de concesión, de 33 km de longitud, fue arrendado a la Compañía de los Agricultores Generales. Ledoux, aprovechando sus privilegiados vínculos con el controlador general de las finanzas, impuso sus planes en 1785. Se ocupó por completo de los diecisiete edificios de colección, los famosos “Propylées” de París inspirados en una geometría simbólica, asociados como otros planos de las oficinas de Ledoux a figuras sencillas.

El círculo y la plaza se unían en La Villette, donde el patio central era circular. La oficina de Combate, triangular en el exterior, cerrada en un círculo central. La cruz griega, sencilla, con las Tres Coronas y la rue Royale Montmartre, encajada en un círculo en La Rapée. Un cortejo de arcadas colocadas sobre soportes gemelos adornaba las fachadas de Belleville y en la Barrière de Fontainebleau. El edificio cúbico de Picpus recordaba a las villas de Palladio en Vicenza. El coste excesivo de estos Propileos condujo a la desgracia del arquitecto. A excepción de las dos rotondas de la Villette y del Parc Monceau, de los pabellones de la Barrière d’ Enfer, las balizas de Ledoux ya no delimitan los contornos de París. La ingratitud sumió al arquitecto filosofo en la amargura, legando este mensaje: “Se puede ser virtuoso o vicioso, como un guijarro áspero o pulido, por el roce de lo que nos rodea…”.

EL GRAN ARCO, EL REVERSO Y LO OBLICUO (François Loyer)

La vista frontal o angulada muestra diferencias al señalar un eje, un orden jerárquico, dentro del caos urbano de la zona. La considerable altura del Gran Arco propicia otras distorsiones visuales.

La construcción de un monumento digno del nombre de la Defensa fue un reto del que Otto Von Spreckelsen salió admirablemente. Los obstáculos abundaban, de cerca y de lejos. El lugar parecía incoherente visto en su ubicación (un caos, según Ieoh Ming Pei). Agobiado por multitud de gestos monumentales, cada uno en espera de tomar su turno. Y si este ramillete de intenciones en competencia estaba extraordinariamente vivo, también era arquitectónicamente intratable. Otros habían intentado dar a esta “Cabeza-Défense” su improbable gloria de coronación, sin éxito.

Apenas uno se alejaba de ella, otros problemas aparecían, contradictorios con la ambición monumental del proyecto: a ocho kilómetros de distancia, la silueta de las torres de la Défense aparecía, anárquicamente, en el paisaje de las Tullerías y no se veía cómo salir de este desorden, salvo cerrando esta perspectiva por un gran muro escénico que habría cegado a los que estaban lejos.

La fuerza del proyecto de Spreckelsen reside en haber reproducido el Arco del Triunfo, una perspectiva de doble sentido (tan interesante cuando se sube a los Campos Elíseos como cuando uno se aproxima desde fuera de París), y en el hecho de haber sido ampliado a la escala del sitio -lo que resuelve y el problema de enmarcar la distancia del Louvre, y el de la relación de la escala con el entorno inmediato de La Défense.

Como todas grandes ideas, ésta era sencilla, casi ingenua: vimos el trazo de lápiz del profesor, más acostumbrado a dibujar “en loge” que a enfrentarse a la realidad. Y estábamos un poco preocupados por el futuro resultado de este inusual proyecto, cuyo purismo clásico respiraba el aire de la academia. Probablemente hubiéramos preferido algo más espectacular, menos obvio.

Invitación a la ciudad

El proyecto, una vez construido, se impone: es -sutilmente- la respuesta adecuada para este sitio. De pronto descubrimos que ¡la Défense no se detiene en la Defense! Detrás de ella se dibuja toda la llanura de Montesson, una inmensa meseta encajonada entre dos bucles del Sena, desde el Pont de Neuilly hasta el bosque de Saint-Germain… La comparación con el sitio de l’Étoile es evidente: el Arco del Triunfo fue durante mucho tiempo esa puerta de la ciudad que, en la cima de la colina, marcaba la ruptura entre la ciudad aglomerada y sus suburbios. La Défense se hizo cargo, en las colinas de Puteaux -erigidas como un anfiteatro a lo largo de las orillas del Sena. Pero cuando se llega desde el lado de Nanterre, la poderosa silueta del Arco no es menos imponente: es la que ordena (y concentra hacia ella) el paisaje desordenado de los suburbios.

Visto desde la terraza de Saint-Germain, París siempre ha sido una amalgama confusa. Hace treinta años, la aparición del gran velo de hormigón que cubría el Centro de Exposiciones fue una especie de hito, aunque la casualidad de la perspectiva lo convirtió en el fundamento incongruente del único monumento visible desde esa distancia: el Sagrado Corazón. Aireado y dibujado, el extremadamente claro contorno del Arco constituye hoy en día un hito mucho más evidente – como una certeza, en el espacio distendido de la periferia.  Cuanto más nos acercamos a ella, más perceptible es el poder de esta masa, transformando la imagen que se podría tener de Nanterre, sus chatarreros y chabolas como uno de los lugares más desfavorecidos de los suburbios interiores. El monumento jugó realmente el papel estructurador que se esperaba de él: hizo de su fondo el comienzo de otra cosa, una invitación a la ciudad.

El desmontaje

Pero la inteligencia del edificio no está sólo ahí.  Está en un extraño detalle de su implantación: el desajuste deliberado que el arquitecto le hizo sufrir. El tema está de moda desde hace diez años: en los órdenes más regulados, la emoción arquitectónica proviene -manierismo supremo- de la falla introducida en el sistema. Alvar Aalto, diseñando un conjunto de tres capillas para el cementerio de Paimio, Finlandia, ya hace tiempo que imaginó la fricción de la alineación – el trabajo en la tangencia que hace que el evento esperado sea menos banal, que hace que el accidente … Retomando las prescripciones pomposas del clasicismo con franqueza, los arquitectos posmodernos comprendieron rápidamente los placeres retóricos de la falsa respuesta, la aleatoriedad y la deformación.

Sin embargo, el desalineamiento del Gran Arco no puede reducirse a un tic de escritura, un detalle de moda. La convención habría sido introducir el defecto rompiendo ligeramente la unidad del diseño del arco, desplazando los pilares fuera de la alineación o rompiendo el coronamiento – en resumen, trabajando en el detalle, como dibujante. Pero es todo el edificio el que está torcido, como si lo hubiera puesto un constructor inexperto. Hay una voluntad, un fuerte deseo de jugar con las convenciones de la perspectiva:

Colocar el edificio oblicuamente es de hecho la única manera de mostrar su grosor. Nada es más tonto que una postal de la estación o del ayuntamiento, tomada en el eje de la avenida que conduce directamente a ella: el fotógrafo más mediocre sabe que es mejor ponerse ligeramente a un lado para hacer visible la profundidad y el volumen del edificio.

Y si esto sucede desde una distancia, cuando uno se halla en sus inmediaciones, las distorsiones son todavía mayores: un continente sin contenido (fuera de la serie de cables junto al ascensor y las “nubes” que aparecen en ese hueco inesperado), con perspectivas exageradas, propias de una construcción colosal.

PERSPECTIVA ANGULAR

Los antiguos griegos utilizaron espontáneamente este principio: el templo de Aphaia, en Aegina, está situado en un ángulo en el centro del recinto rectangular que lo rodea. Y el Partenón o el Erecteión en la Acrópolis de Atenas no está mejor enfocado. Cuando se pasa por la Puerta de los Propylæa, ambos edificios aparecen como esculturas en la esquina – casi una invitación a irse por donde uno ha llegado. Lo que los historiadores de la planificación urbana antigua han llamado perspectiva angular es la aplicación de esta regla (véase Constantinos Doxiadis), diferente de la que los romanos nos legaron bajo el nombre de perspectiva frontal, como aparecen en los diversos Foros.

Sin embargo, cuanto más larga es la perspectiva, más se aplana el frente del edificio que lo cierra, hasta el punto de reducirlo a una superficie más delgada y menos decorativa. Muchos artistas del período Clásico lo entendieron – ya sea Miguel Ángel, cuando estranguló la perspectiva de la Piazza del Capitolio de Roma entre los volúmenes convergentes de los dos palacios laterales (sacando así partido de un accidente de la Historia), o Domenico Fontana, que creó el ilustre tridente de la Piazza del Popolo, más tarde reproducido en Versalles: ¡las aproximaciones al castillo son mucho más interesantes desde las avenidas oblicuas que desde el eje!

El eje del Louvre y las Tullerías está sufriendo un cambio deliberado en su curso. Cuando se decidió aplazar la concesión de París al exterior de los nuevos barrios bajo Napoleón III, el diseño de la Place de l’Étoile se concibió de manera que se realzaran las perspectivas oblicuas del monumento. Inicialmente, sólo había una avenida en el eje – los Campos Elíseos – que atravesaba un muro de recinto marcado por dos pabellones de concesión. Al darle a la Place de l’Etoile la radiante forma de doce ramas que ahora es suya, Hittorff multiplicó las perspectivas oblicuas, cambiando totalmente la silueta del edificio según el ángulo desde el que se aproxima. Entre los dos ejes perpendiculares se introducen cada vez dos avenidas: el ángulo de 30º da una vista tangente de las caras del edificio (la más bella es la ligeramente en picado, que fue enmarcada desde la avenida Foch y es la verdadera extensión de la perspectiva hacia el Bois de Boulogne). A Spreckelsen se le encargó la tarea de tomar el eje de las Tullerías y darle, unos kilómetros más adelante, una nueva conclusión. Propuso una versión magistral del principio de tangencia explotado por su predecesor.

LE BERNIN

¿No es sorprendente que el otro extremo de la perspectiva, la ruptura del alineamiento del Louvre haya sido sacado a la luz por Leoh Ming Pei, que hizo de él el principal tema arquitectónico de la pirámide, en su inserción en el patio del Carrusel – llegando a subrayar el accidente de implantación por la deportación, a la derecha del edificio, de la gran estatua monumental de Luis XIV de Bernin (una escultura situada en el eje de las Tullerías)?

¿Podría el Gran Arco de la Defensa ser hausmaniano? Por su arquitectura, en absoluto – no más que el conjunto de La Défense, por otra parte, que se sacrifica a la estética de la industria material- y su perfección gráfica, en absoluta contradicción con la tradición clásica de la piedra esculpida. Sin embargo, el diseño obviamente retoma las sutilezas de la escritura urbana heredada del Haussman: el sentido del sitio, el sentido del monumento y la sutileza de sus enfoques. La arquitectura de finales del siglo XX estará quizás menos marcada por sus formas que por su sentido de inserción en el paisaje urbano.

Estructura y proceso de construcción

 

 

 

 

Ascensor, nubes, y la magia de Peter Rice

En sus bocetos preliminares, Otto Von Spreckelsen había dibujado la silueta de la nube que se extendía entre las paredes verticales del Cubo. Su intención inicial era diseñar una estructura de vidrio y acero, suspendida por cables. La carga de todo el asunto era contraria a su visión inicial.  La solución de una estructura colocada en el suelo traicionó la idea original. Aconsejado por Paul Andreu, llamó entonces a Peter Rice, equilibrista, más ligero que el aire en el siglo de todos los pesos, ideológicos o estéticos.

Cortés y enigmático, Peter Rice compone un laberinto translúcido, una hábil búsqueda del tesoro donde el azar no es más que un teatro de sombras. Las sombras de las nubes que corren… Construye refugios luminosos para desfiles fortuitos, juegos de adultos reconciliados con el viejo niño que eran. La “tontería” de Lewis Carroll ha encontrado su prosélito: Peter Rice…

“Las nubes – explica Paul Andreu – actúan como árboles delante de un edificio. Dan densidad al espacio, crean distancias. ,. Peter Rice juega, como un tejedor solar, con luz y sombra, días falsos y crepúsculos reales. Las nubes devuelven la monumentalidad abstracta del Gran Arco a la escala humana”, dice. El complejo de nubes se compone de dos partes: una parte se está completando en el Gran Arco y otra parte en la explanada.. Las nubes bajo el Arco tienen entre quince y treinta y tres metros de altura en relación con la explanada, pero sus márgenes están a unos nueve metros por encima de la meseta del Arco. Parecen ser nubes en dos volúmenes, dos caminos que se elevan suavemente a cada lado de la plaza hasta llegar a los escalones del Gran Arco.